14. ročník súťaže Rodinný Dom
2022
Jakub Jokel

Názov projektu
HB. Joky
Spoluautor projektu
-
Vedúci projektu
Ing. Ondrej Hanzlík
Názov školy
SPŠ Stavebná Hurbanovo
Rok
2022
Opis vášho projektu
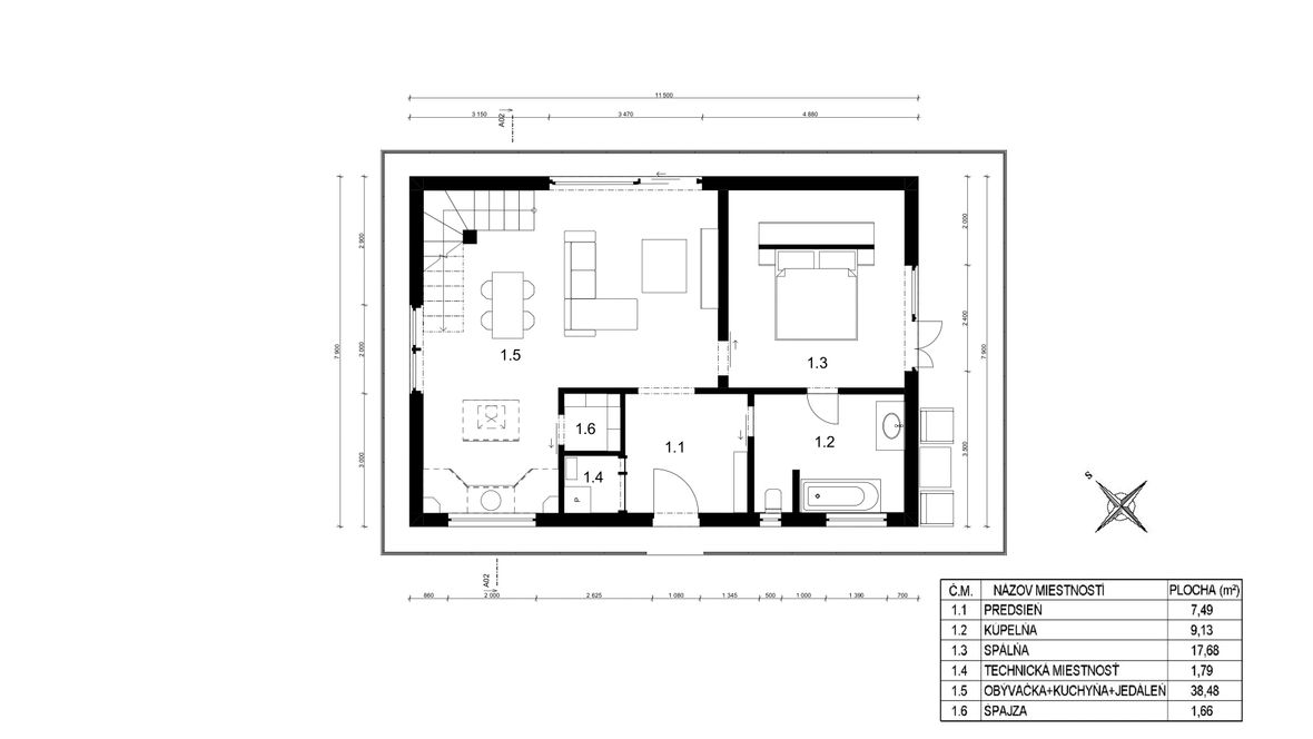
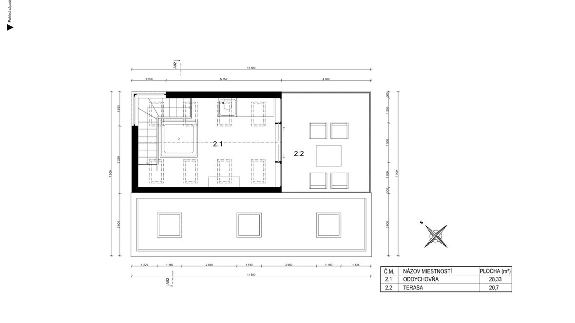
Dvojpodlažný houseboat , ktorý je určený pre dvojčlenné páry na zrelaxovanie a oddych od večného hluku a nepokoja v meste. Projekt je situovaný na umelo vytvorenom jazierku v zalesnenej časti krajiny. Hlavnou myšlienkou projektu HB. Joky, bolo vytvorenie houseboatu pre všetky vekové kategórie. Vďaka strešným oknám Velux , je objekt dostatočne presvetlený. Na 1.NP je vytvorený podhľad na vedenie rekuperačného systému. Houseboat je navrhovaný z drevenej konštrukcie a druhé nadzemné podlažie je taktiež obložené drevom. Na 1.NP sa nachádza predsieň, kúpeľňa s toaletou, spálňa a obývačka s kuchyňou. Na 2.NP oddychovňa s terasou.
















