14. ročník súťaže Rodinný Dom - Odmena
Natália Florková
Natália Florková

Názov projektu
CUBE
Spoluautor projektu
Natália Florková
Vedúci projektu
Ing. Zsóka, PhD., Ing. Kucharová, Ing. arch. Buchová
Názov školy
SPŠS Žilina
Rok
2022
Opis vášho projektu
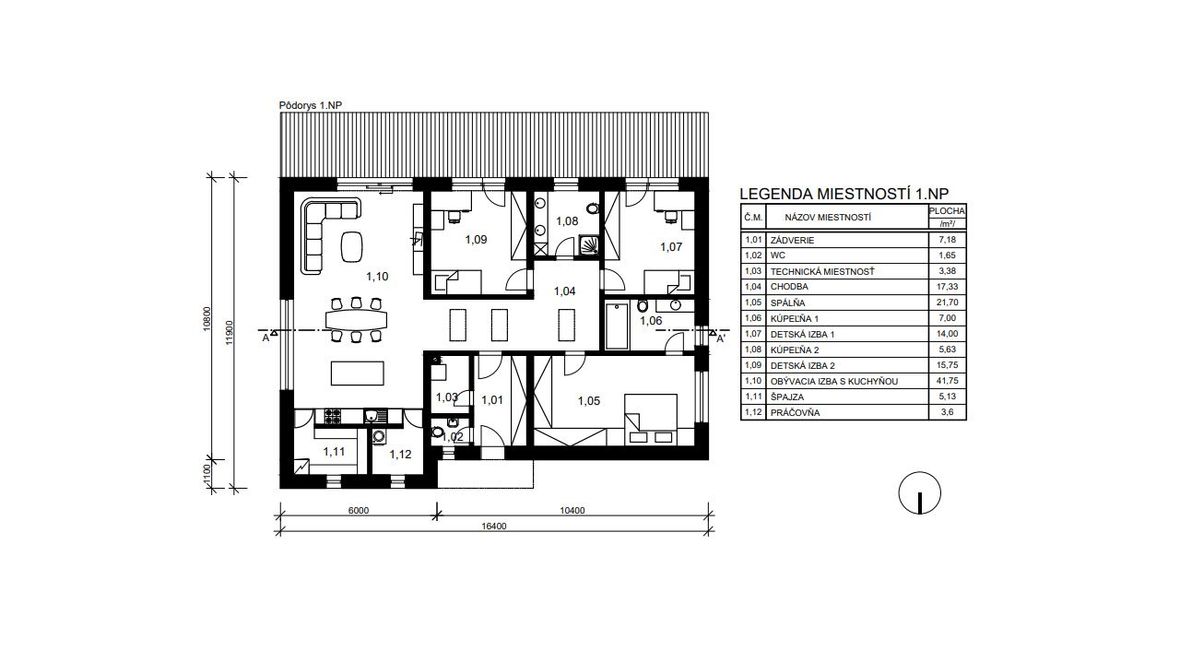
Dom je situovaný do vidieckeho prostredia. Dispozične rozdelený na dennú a nočnú časť. Dennú časť tvoria obývacia izba s kuchyňou a jedáleň. V nočnej časti sa nachádzajú dve detské izby, rodičovská spálňa a hygiena. Objekt je jednopodlažný prestrešený plochou vegetačnou strechou a doplnený strešnými svetlíkmi CVU0220Q rozmerov 900x1200 mm. Objemovo sa stavba skladá z dvoch kubusov rôznej výškovej úrovne. Riešenie fasády je kombinácia dreveného obkladu a bielej omietky.





