14. ročník súťaže Rodinný Dom
2022
Lara Bencová

Názov projektu
FRESH House
Spoluautor projektu
Lukáš Krška
Vedúci projektu
Ing. Mária Žilecká
Názov školy
Stredná priemyselná škola stavebná v Nitre
Opis vášho projektu
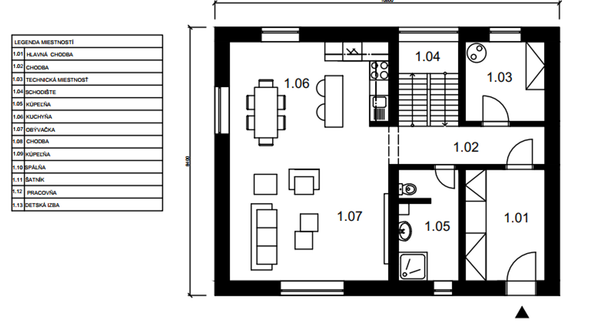
FRESH House je rodinný dom,ktorý je navrhnutý pre 3 člennú rodinu.Je to dvojpodlažný rodinný dom so sedlovou strechou,druhé podlažie je riešené ako obytné podkrovie.Dom je rozdelený na nočnú a dennú časť.Prízemie predstavuje dennú časť s priestrannou kuchyňou spojenou s obývacou izbou.Na prízemí sa nachádza ešte vstupná chodba,technická miestnosť a kúpeľňa spojená s WC.Podkrovie predstavuje nočnú časť.Nachádza sa tam spáľňa s vlastným šatníkom,kúpeľňa s WC,pracovňa a detská izba.Podkrovné izby sú osvetlené strešnými oknami Velux.Výhodou strešných okien je väčšie presvetlenie izieb.Dokážu priniesť omnoho viac prirodzeného svetla ako okná fasádne.









