15. ročník súťaže Rodinný Dom
2022/2023
Matej Horváth

Názov projektu
NAOS
Spoluautor projektu
Matej Horváth
Vedúci projektu
Ing. Arch. Petra Radvániová
Názov školy
SPŠ stavebná a geodetická, Lermontovova 1, Košice
Rok
2022/2023
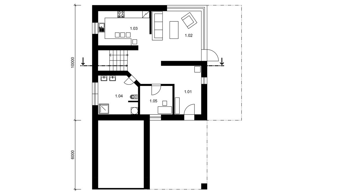
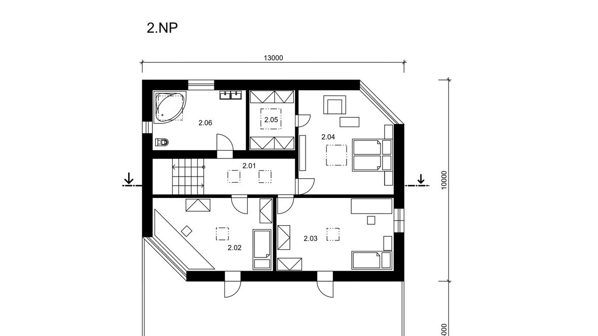
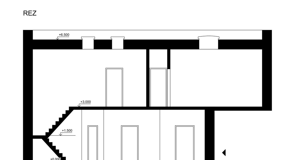
Opis vášho projektu
Tento dom je miestom, kde sa cítime úplne slobodní a sami sebou. Keď vchádzame do jeho priestorov, cítime sa okamžite pohodlne a tešíme sa z toho, že sme doma. Je to miesto, kde môžeme vyjadriť svoju kreativitu v každom kúsku nábytku a dekorácii. Je to miesto, kde sa v nedeľu ráno spolu s rodinou oddychuje a relaxuje. V dielni sa môžete venovať svojmu záujmu a remeslu a robiť veci, ktoré vás napĺňajú a robia šťastnými. Môžete tu byť sami sebou a vždy sa tu budete cítiť šťastní a spokojní.






