15. ročník súťaže Rodinný Dom
.
Daniel Rohlíček

Názov projektu
Yust House
Vedúci projektu
ING.ARCH. KATARÍNA LAVRINČÍKOVÁ
Názov školy
STREDNÁ PRIEMYSELNÁ ŠKOLA STAVEBNÁ A GEODETICKÁ, Bratislava
Opis vášho projektu
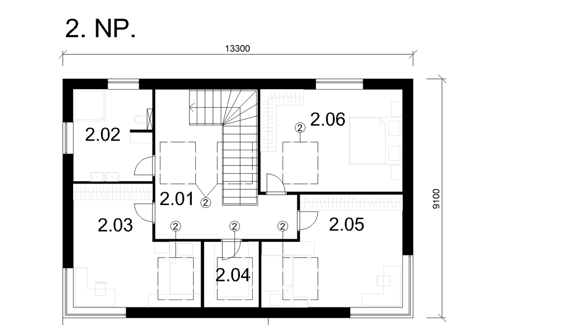
"Yust house" je dvojpodlažný rodinný dom určený pre štvorčlennú rodinu. Na stavbu je využité murivo ytong. Vonkajšia povrchová uprava je tvorená kamenným a dreveným obkladom, strecha je plechová. Vstup je chránený vysunutým druhým nadzemným podlažím, priestor je určený aj na odparkovanie auta. Na prvom nadzemnom podlaží sa nachádza kúpelňa, pracovňa a obývačka spojená s jedálňou a kuchyňou. V druhom nadzemnom podlaží sa nachádzajú izby, sklad a kúpelňa. Izby sú presvetlené veľkými oknami v murive a strešnými oknami.











