15. ročník súťaže Rodinný Dom
SOS stavebná Liptovský Mikuláš
David Petho

Názov projektu
modern house
Spoluautor projektu
David Petho
Vedúci projektu
Ing. Zuzana Šišáková
Názov školy
SOS stavebná Liptovský Mikuláš
Rok
2023
Opis vášho projektu
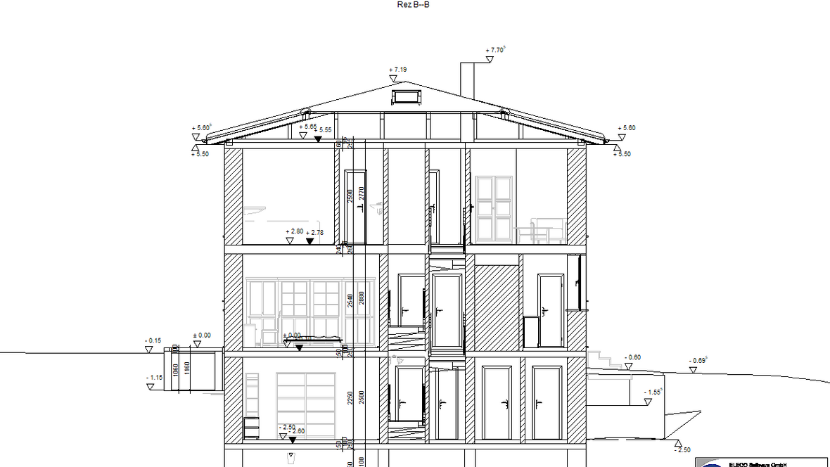
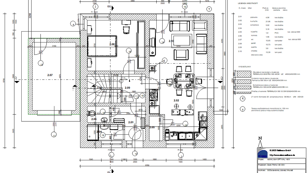
Rodinný dom s pôdorysnými rozmermi 9,78mx9,78m je trojpodlažný jednogeneračný. Je navrhnutý z pórobetónového stavebného systému Termalica tak, aby vyhovoval súčasným tepelnotechnickým požiadavkám nízkoenergetickej budovy na bývanie. Má stanovú strechu so sklonom 15° a s markízou tak, aby chránila vstup do objektu. Garážová strecha je plochá s minimálnym so sklonom 0,5°. Strešný plášť je zateplený 3 vrstvami tepelnej izolácie Rockwool . Podkrovie je presvetlené a prevetrané strešnými oknami VELUX Premium s rozmermi MK06 780/1180 v počte 2ks.
















