15. ročník súťaže Rodinný Dom - 2. miesto
.
Kristián Povala

Názov projektu
SHADE
Spoluautor projektu
Kristián Povala
Vedúci projektu
Ing. Kucharová, Ing. Zsóka, PhD.
Názov školy
Stredná priemyselná škola stavebná, Žilina
Opis vášho projektu
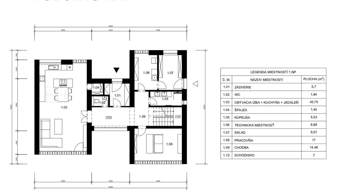
Projekt "SHADE" je situovaný pár kilometrov od Popradu v obci Veľký Slavkov s krásnym výhľadom na Vysoké Tatry. Dom je určený na bývanie 3-člennej rodiny. Dispozične je rozdelený na dennú (1.NP) a nočnú časť (2.NP). Výrazným prvkom tohto domu sú vysoké okná v kombinácií s tieniacimi hranolmi, ktoré dobre presvetľujú interiér a vytvárajú príjemné prostredie na bývanie. V tom ich dopĺňajú strešné okná a svetlíky Velux, ktoré sú umiestnené prevažne nad obytnými miestnosťami a zabezpečujú tak dostatočný prísun svetla. Zastrešenie objektu je riešené vegetačnými strechami, a tak zeleň ostane aj na zastavanej ploche. V zadnej časti domu je vybudovaná terasa obklopená pestrými kvetmi, ideálna na relax po ťažkej práci.

















