16. ročník súťaže Rodinný Dom
2024
Jana Rácová

Názov projektu
Spoluautor projektu
Vedúci projektu
Názov školy
Opis vášho projektu
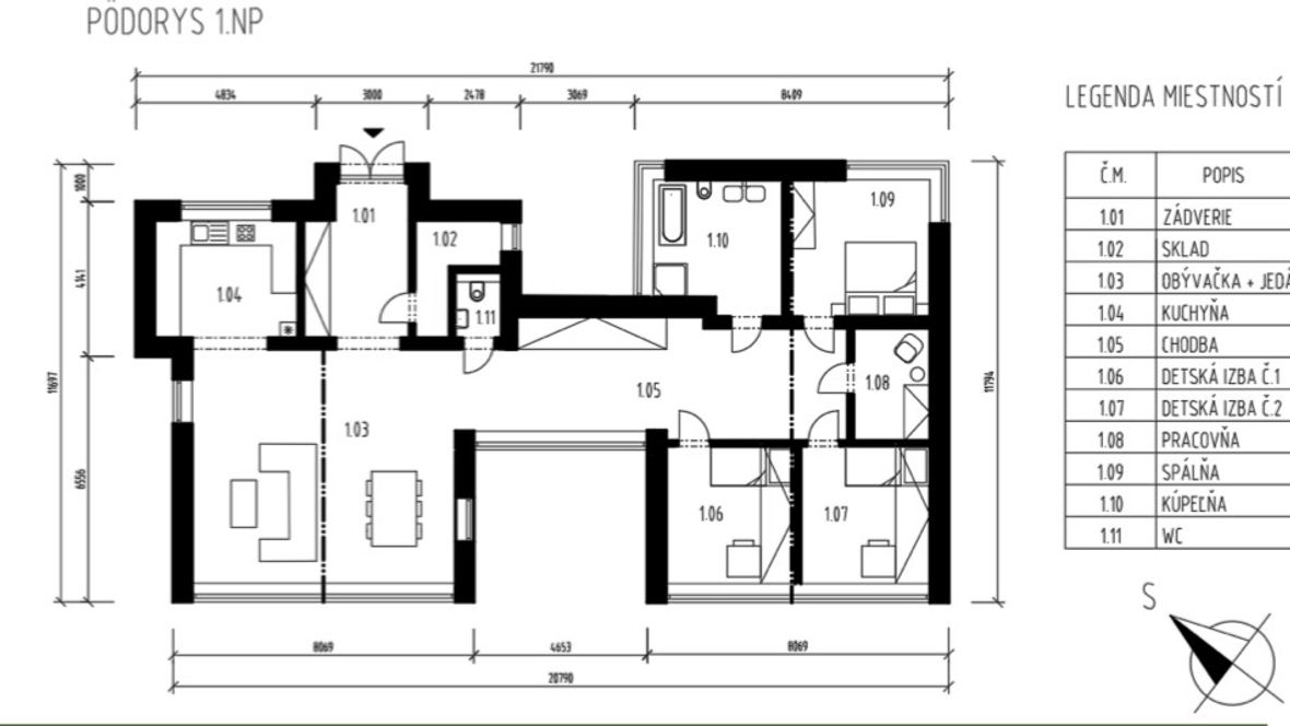
Projekt "LUCID" je situovaný v Dolnom Kubíne s krásnym výhľadom na hory. Dom je určený na bývanie 4- člennej rodiny . Výrazným prvkom domu sú vysoké okná ktoré dobre presvetľujú interiér a vytvárajú príjemné prostredie na bývanie. Dopĺňajú ich strešné okná a svetlíky Velux, ktoré sú umiestnené prevažne nad obytnými miestnosťami a zabezpečujú tak dostatočný prísun svetla. Pri vchode vás privíta vstupná hala so šatníkom a po ľavej strane technická miestnosť. Následne vás chodba nasmeruje do centra domu, kde je srdcom veľká obývačka spojená s jedálňou a kuchyňou. Obývačka s kuchyňou vďaka veľkým oknám ožíva dostatkom svetla a ponúka hladký prechod na vonkajšiu terasu, ideálnu pre rodinné oslavy, grilovačky alebo len príjemné posedenie pri káve. Ďalej po ľavej strane, vedľa technickej miestnosti nájdeme WC a chodbu ktorá vedie do druhej strany domu. Druhá strana dispozične pozostáva zo štyroch izieb, ktoré je možno zariadiť ako detské izby, priestrannú spálňu pre rodičov a pracovňu. Kúpeľňa, ktorá disponuje vaňou aj sprchovým kútom. Celý dom tak ponúka komfortné usporiadanie s dôrazom na súkromie a praktickosť. Zdieľané priestory ako jedáleň spájajú rodinu, zatiaľ čo samostatné izby poskytujú miesto pre osobný čas.









