16. ročník súťaže Rodinný Dom
S HVIEZDAMI
Lukáš Mičunek

Názov projektu
S HVIEZDAMI
Spoluautor projektu
-
Vedúci projektu
Ing. Arch. KATARÍNA LAVRINČÍKOVÁ
Názov školy
Stredná priemyselná škola stavebná a geodetická, Drieňová 35
Rok
2024
Opis vášho projektu
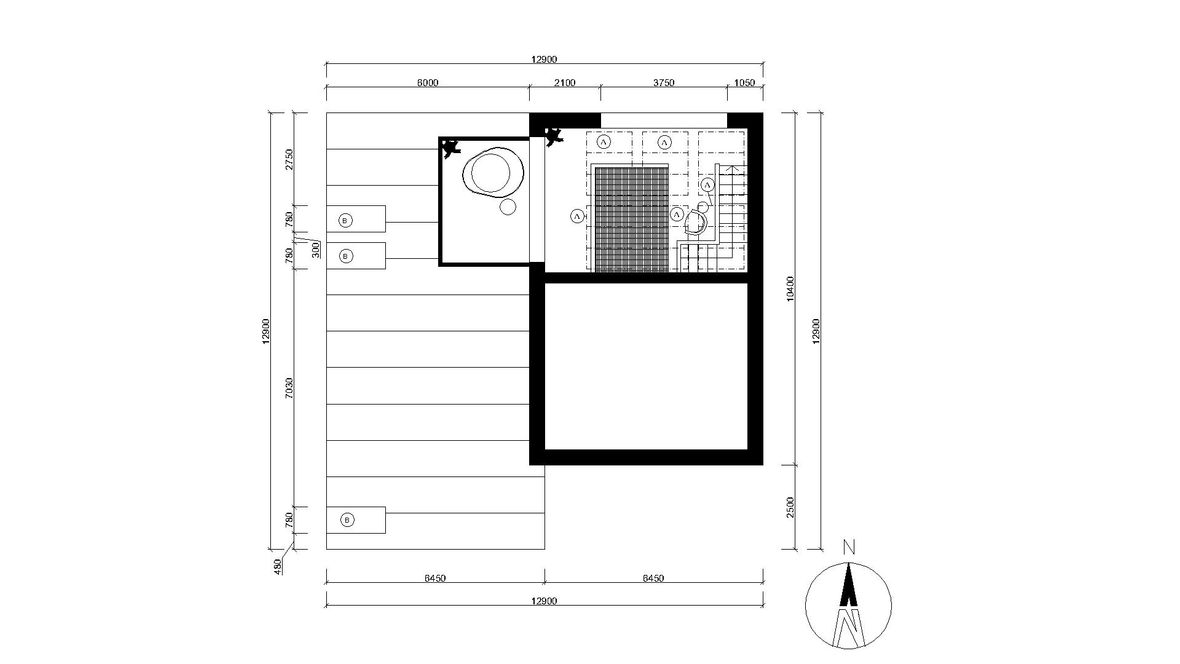
3 PODLAŽNÝ DOM PRE 3-4 ČLENNÚ RODINU JE TVORENÝ Z 1NP AKO DENNEJ ČASTI A 2NP A 3NP AKO NOČNEJ ČASTI . V DOME SA NACHÁDZAJÚ 2 IZBY, 2 KÚPEĽNE S TOALETOU, ŠATNÍK, TECHNICKÁ MIESTNOSŤ, OBÝVAČKA A KUCHYŇA SPOJENÁ S JEDÁLNOU. OBÝVAČKA A IZBY SÚ PRESVETLENÉ STREŠNÝMI A ZVISLÝMI OKNAMI VELUX. TAKTIEŽ 2. POSCHODIE DETSKEJ IZBY JE OBOHATENÉ O STREŠNÝ BALKÓN, NA KTORÝ SA DOSTANETE CEZ FRANCÚZSKE OKNO, IZBA TIEŽ POSKYTUJE SIET NA DRUHOM POSCHODÍ IZBY, Z KTOREJ MÔŽETE POZOROVAŤ DENNÚ ČI KRÁSNU NOČNÚ OBLOHU S HVIEZDAMI POMOCOU STREŠNÝCH OKIEN VELUX. PRE FASÁDU SOM SI VYBRAL ZELENÚ FARBU PRE UNIKÁTNOSŤ A ČIERNE DOPLNKY. VNÚTORNÝ PRIESTOR JE BIELY SPOLU S ČIERNYMI A DREVENÝMI PRVKAMI.
















