17. ročník súťaže Rodinný Dom
Atriona
Sofia Marková

Názov projektu
Atriona
Spoluautor projektu
-
Vedúci projektu
Ing. arch. Katarína Lavrinčíková
Názov školy
Stredná priemyselná škola stavebná a geodetická, Bratislava
Rok
2025
Opis vášho projektu
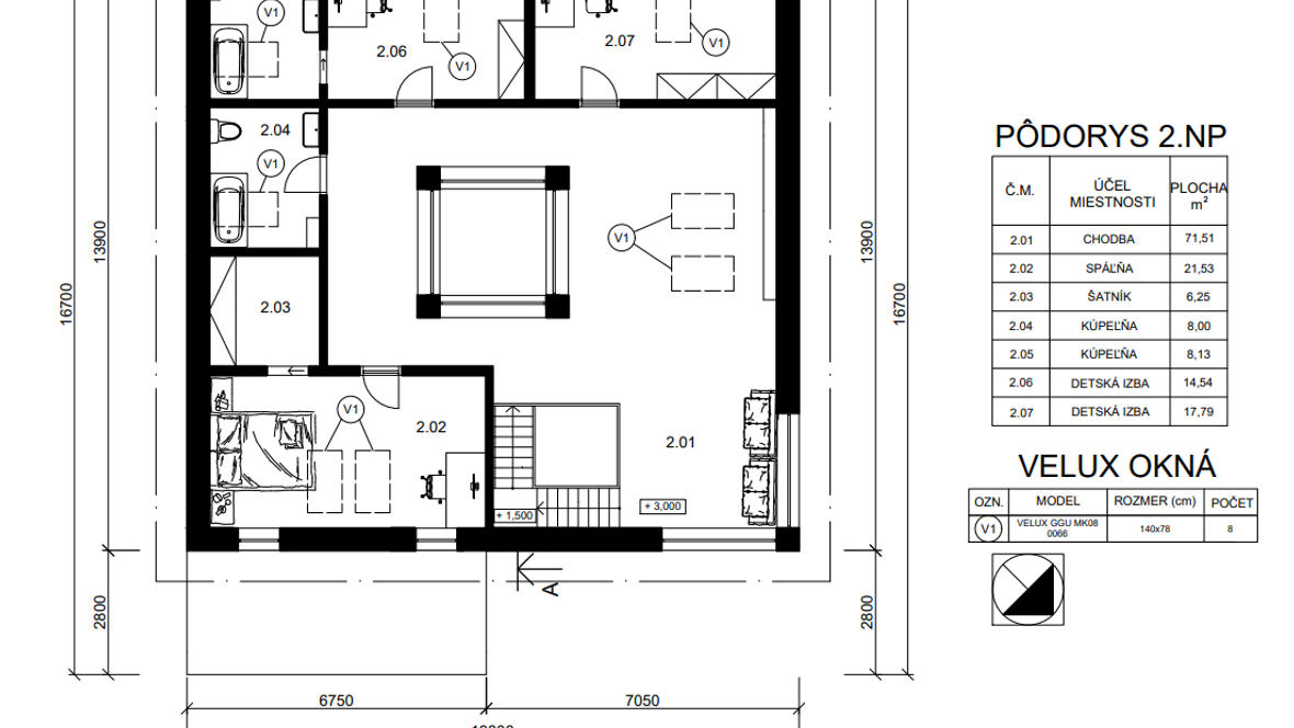
Rodinný dom Atriona sa vyznačuje svojím minimalizmom a modernou architektúrou. Dom je rozdelený na dennú časť na 1.NP a na nočnú časť, ktorá sa nachádza na 2.NP. Dominantným prvkom tejto stavby je átrium, ktoré je situované v strede domu. Z jednej strany átria sa nachádzajú presklené dvere, ktorými sa dá vojsť dovnútra. Átrium je presvetlené a vetrané jedným veľkým na mieru vyrobeným svetlíkom. Spája nie len vizuálne prepojenie, ale aj dostatok denného svetla, čo vytvára pocit otvorenosti a vzdušnosti. Ďalší prístup svetla do domu sú strešné okná VELUX, ktoré sa nachádzajú v každej miestnosti na 2.NP. Sú na diaľkové ovládanie, takže používanie je bezproblémové.
















