17. ročník súťaže Rodinný Dom
CUBE
Adam Kováč

Názov projektu
CUBE
Spoluautor projektu
nie je
Vedúci projektu
Ing. arch. Darina Sojáková
Názov školy
STREDNÁ PRIEMYSELNÁ ŠKOLA STAVEBNÁ A GEODETICKÁ
Rok
2025
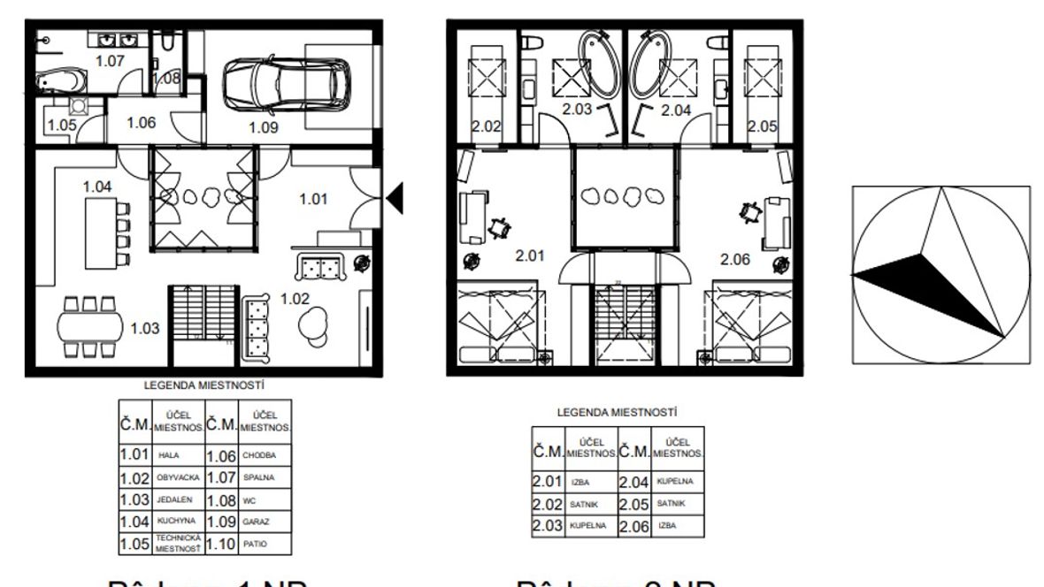
Opis vášho projektu
Brutalistický dom CUBE bez klasických okien sa nachádza v lese, kde hrubý betón kontrastuje s jemnosťou prírodného prostredia. Objekt má jednoduchú kvádrovú formu a je orientovaný introvertne – svetlo preniká cez centrálne átrium, ktoré slúži ako zelené srdce domu. Vnútorný dvor nahrádza výhľad do okolia a prináša pokoj, svetlo aj súkromie. V interiéri sa surový betón dopĺňa s prírodnými materiálmi a minimalistickým zariadením. Celá dispozícia smeruje dovnútra, čo vytvára ochranný obal voči okoliu a podčiarkuje atmosféru úniku a sústredenia. Koncept pracuje s ostrým kontrastom – tvrdosť betónu verzus mäkkosť prírody, tma verzus svetlo, uzatvorenosť verzus otvorené nebo nad átriom.








