17. ročník súťaže Rodinný Dom
RODINNÝ DOM LIANA
Chiara Kopčanová

Názov projektu
Spoluautor projektu
Vedúci projektu
Názov školy
Rok
Opis vášho projektu
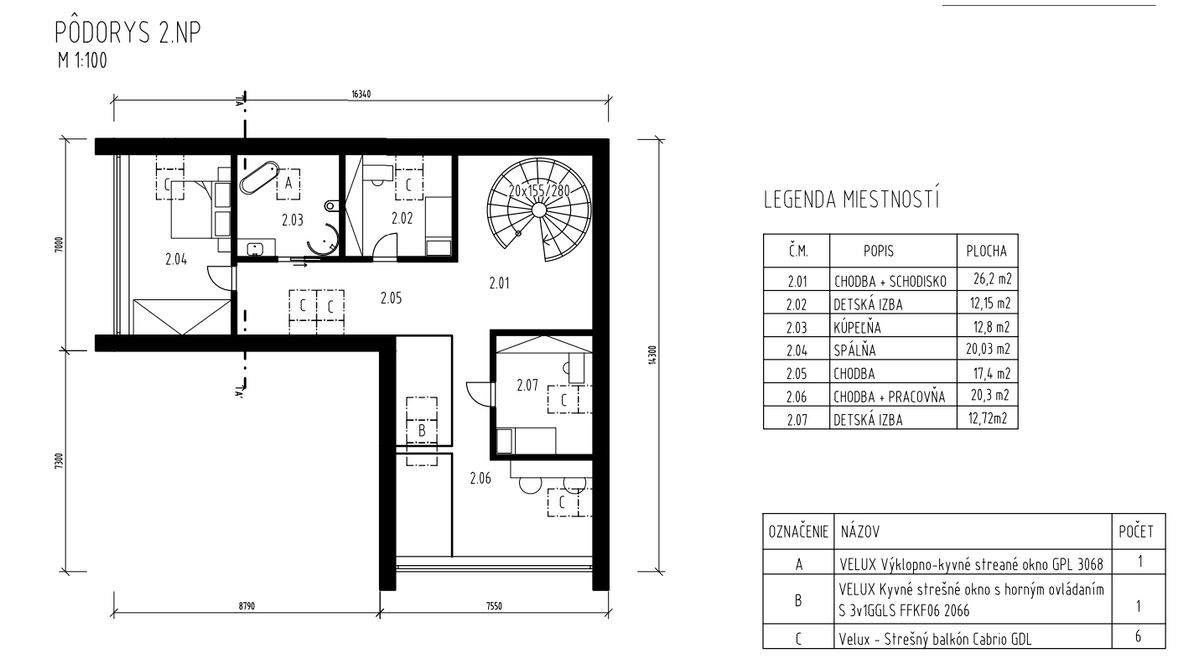
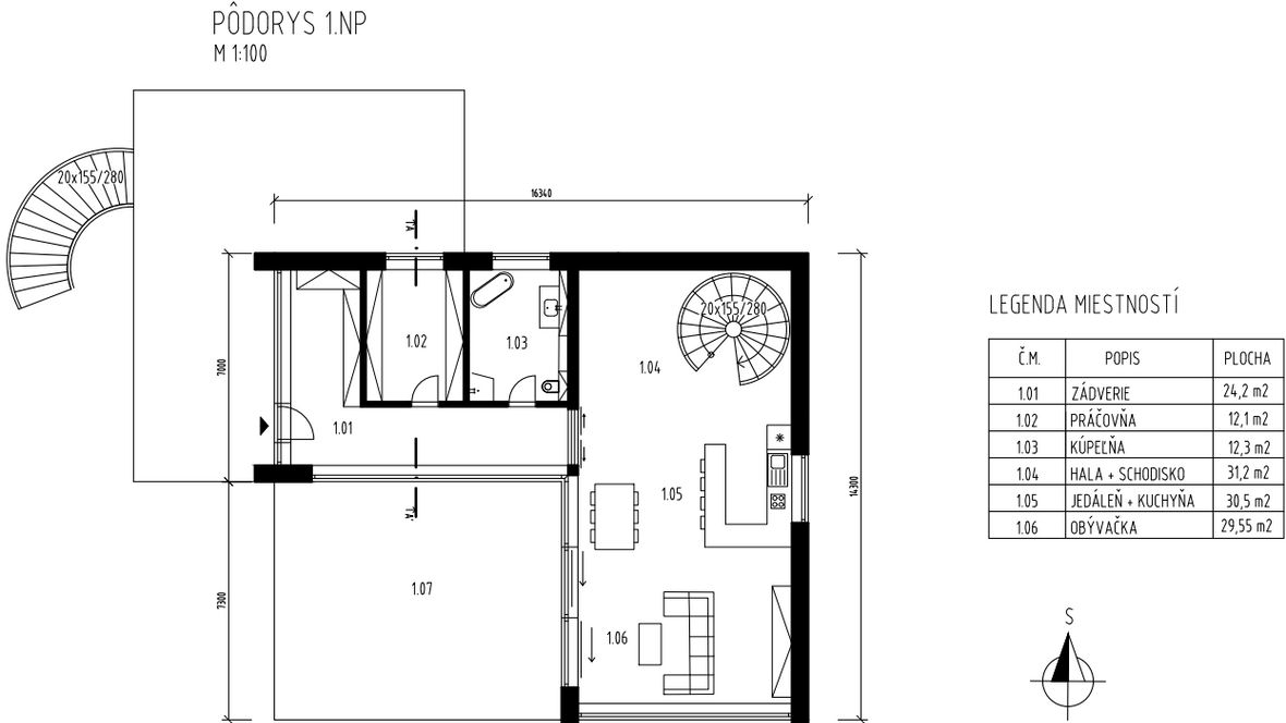
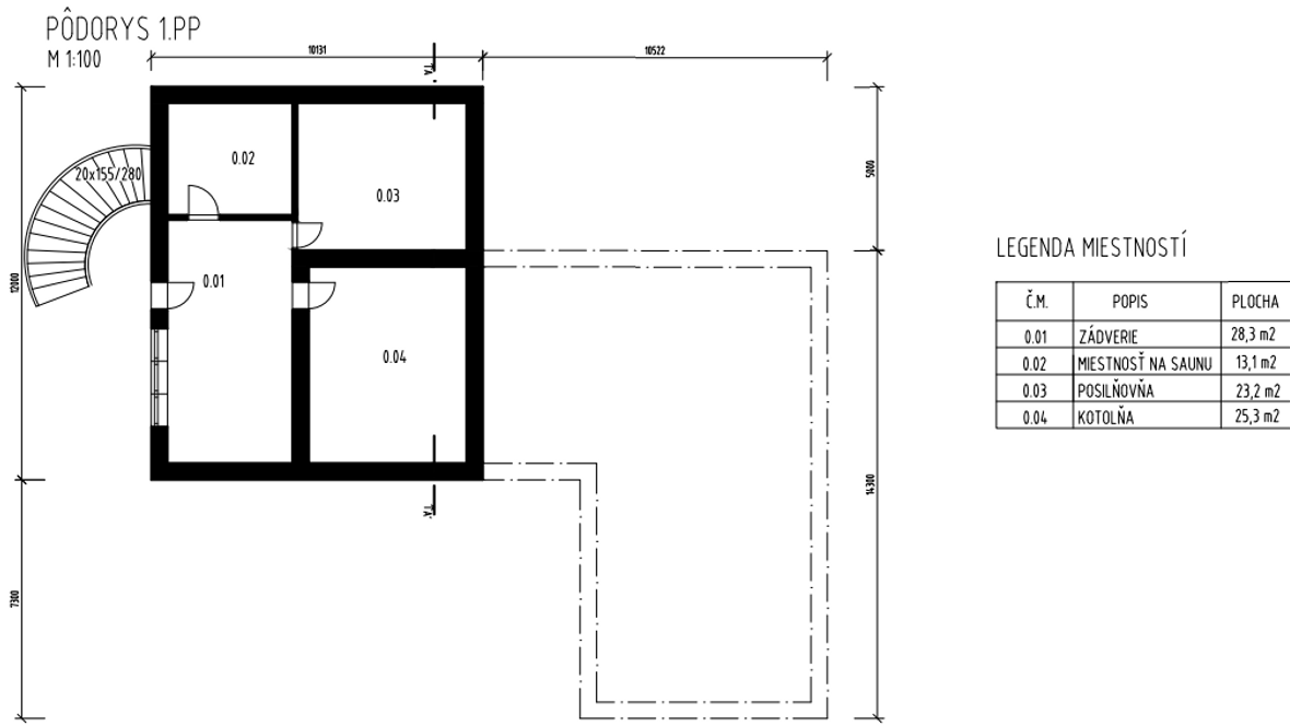
Rodinný dom je moderný a svojimi vnútornými priestormi uspokojí nároky na bývanie pre štvorčlennú rodinu. Je to dvojposchodový dom, ktorý je čiastočne podpivničený. Vstupné dvere do domu vás privedú do predsiene, z ktorej sa dostaneme na začiatok chodby. V chodbe sa nachádza práčovňa a priestranná kúpeľňa. Ďalej sa cez zásuvné dvere dostaneme do haly, kde sa po pravej strane nachádza točité schodisko z pohľadového betónu. Po pravej strane sa nachádza otvorená kuchyňa spojená s jedálňou a obývačkou. Priestor v dennej časti je určený na posedenia s rodinou a hosťami pri jedle, taktiež umožňuje aj výstup na terasu. Nad obývačkou je otvorená časť stropu cez ktorú prechádza svetlo pomocou strešných okien VELUX. Na druhom poschodí je nočná časť a nachádzajú sa tam dve detské izby so spálňou, ktoré sú osvetlené cez balkónové strešné okná VELUX. Je tam aj kúpeľňa a celé toto oživuje sieť v otvorenej časti stropu. Celý dom je dekorovaný s drevenými lamelami a je prispôsobený svahovitému pozemku.












