17. ročník súťaže Rodinný Dom
Vladov Dom
Ábel Rédvai

Názov projektu
Spoluautor projektu
Vedúci projektu
Názov školy
Rok
Opis vášho projektu
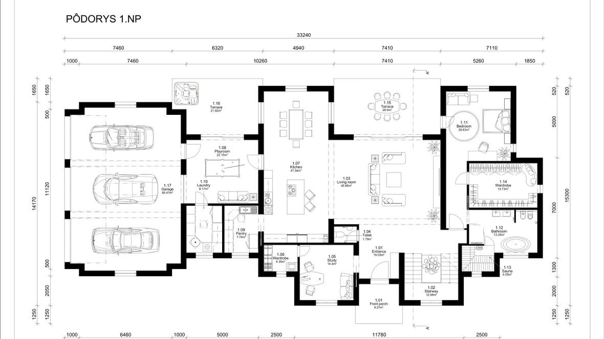
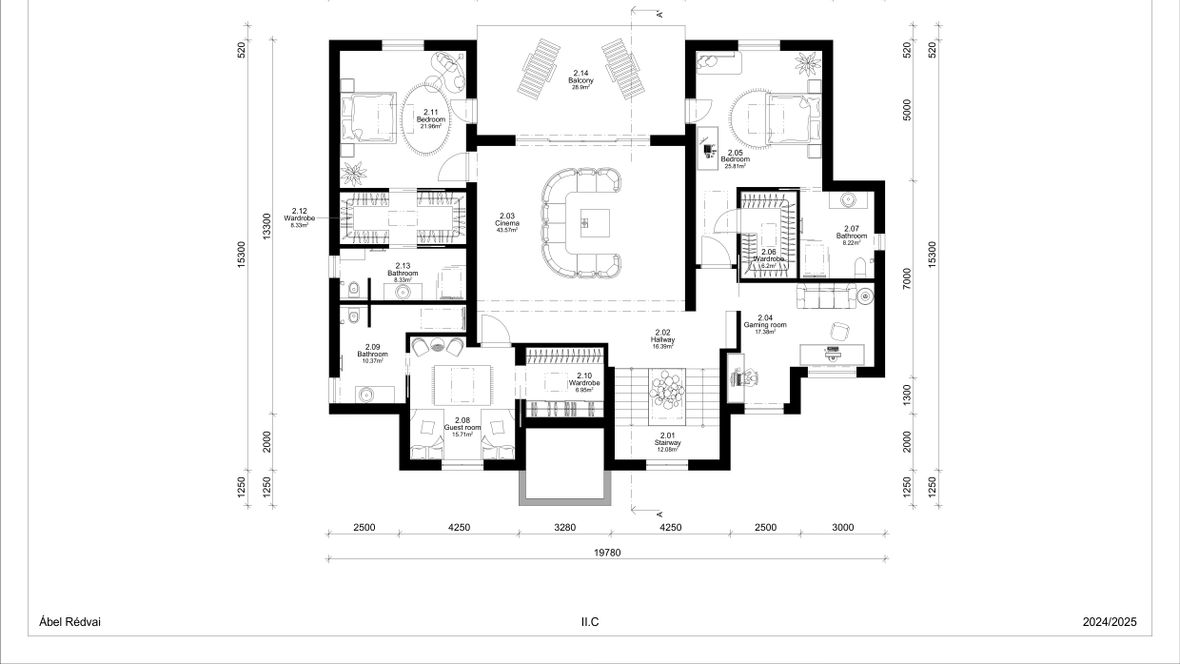
Tento súčasný rezidenčný návrh spája minimalizmus s udržateľnosťou a vytvára dom, ktorý je zároveň funkčný aj elegantný. Stavba sa vyznačuje výraznou geometrickou formou s čistými líniami a premyslenou kombináciou prírodného kamenného obkladu a bielej omietky. Fasádu prepichujú veľkoformátové okná od podlahy po strop, ktoré zaplavujú interiér prirodzeným svetlom a zároveň posilňujú vizuálne prepojenie s okolím. Kľúčovým prvkom je rozsiahle použitie strešných okien – strategicky umiestnených na zelených strechách – ktoré zabezpečujú maximálne presvetlenie vnútorných priestorov v súlade s víziou spoločnosti Velux o zdravom vnútornom prostredí. Tieto okná nielen znižujú potrebu umelého osvetlenia, ale podporujú aj pasívne solárne vykurovanie. Zelená strecha je dôkazom záväzku k ekologickému prístupu – zlepšuje tepelnoizolačné vlastnosti budovy, zadržiava dažďovú vodu a zároveň vizuálne obohacuje objekt. Zadná časť domu sa otvára do záhrady s bazénom, čím podporuje plynulý prechod medzi interiérom a exteriérom. Vstup orientovaný na sever je lemovaný živým plotom, ktorý zaisťuje súkromie a príjemné privítanie. Tento návrh ukazuje, ako môže byť moderná architektúra hlboko zakorenená v udržateľnosti bez kompromisov v oblasti luxusu či komfortu.



























