18. ročník soutěže King of daylight / Freestyle
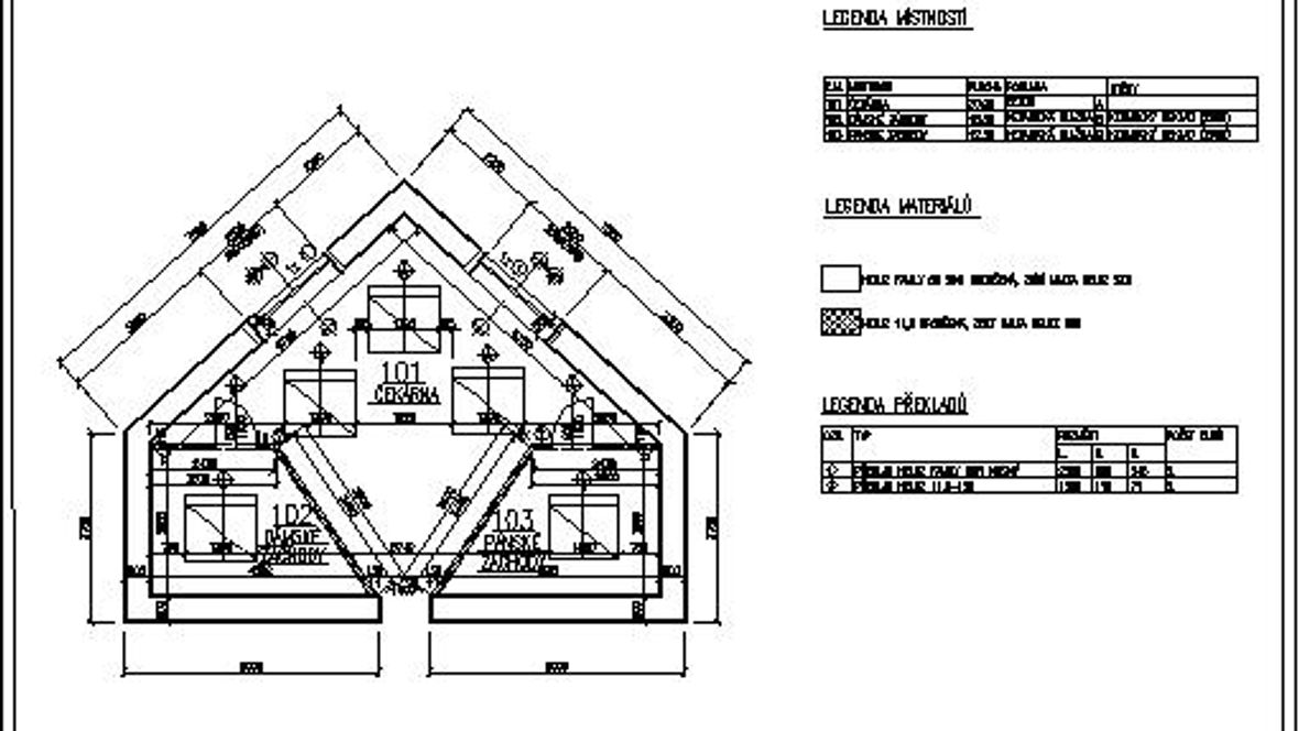
Autobusová čekárna/zastávka
Leona Dvořáčková

Název projektu
Autobusová čekárna/zastávka
Vedoucí projektu
Ing. Jana Leischnerová
Název školy
Střední průmyslová škola stavební Brno
Rok
2022
Popis projektu
Mou hlavní myšlenkou bylo. Změnit místo kde lidé, kteří mají velké proluky mezi spoji, stráví příjemný čas v osvětlené místnosti dením světlem a plně informováni o svém spoji. Čekárna má atipický tvar, který má rozdělovat dámské a pánské záchody a zároveň v jednom bodě spojovat místo na čekání. V tomto místě jsou dvě okna 2x2m ležící naproti sobě. V největším přísunu světla přímo pod nimi jsou lavičky, které v rohu rozdělují knihovny. Ale největší zásluhu za světlo mají na zelené střeše vsazené světlíky značky Velux. Pro čekání v pozdních hodinách jsem přidala i úmělé osvětlení.







