18. ročník soutěže King of daylight / Freestyle
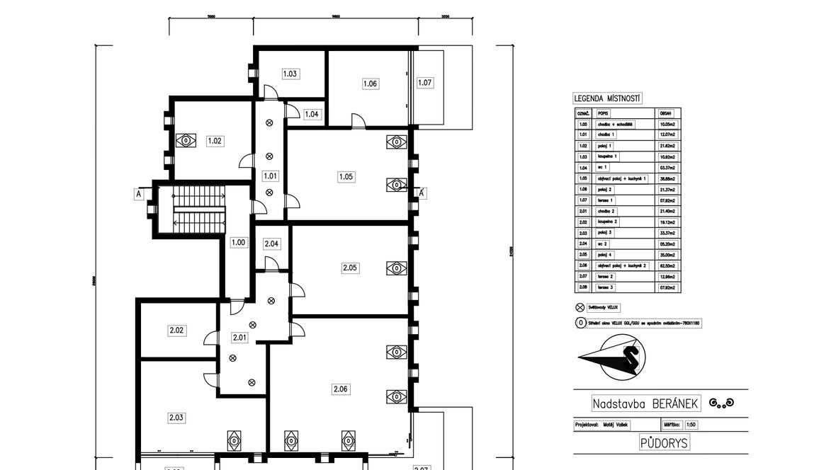
Nadstavba BERÁNEK
Matěj Vašek

Název projektu
Vedoucí projektu
Název školy
Rok
Popis projektu
Současná bytová situace v České republice je deficitní. Poptávka bydlení v rodinných domech je omezena množstvím pozemků vhodných k zástavbě. Ve velkých městech je možnost samostatného pozemku velmi malá, a proto je každá příležitost k zastavění výzvou na maximální využití ploch i ve vertikálním směru. Jednou z možností jsou nadstavby bytových domů. Nadstavba BERÁNEK je navržena na nárožním bytovém domu na křížení ulic Štefánikova a Skřivanova v Brně. Nadstavba obsahuje dvě bytové jednotky 2+kk (+balkon) a 3+kk (+2 balkony). Oba byty mají charakteristická štíhlá francouzská okna s širokým lemem. Byty jsou velkoryse prosvětleny i vstupy na balkony a střešními okny VELUX (TYPMODELU). Prostory chodeb uvnitř nadstavby jsou doplněny SVĚTLOVODY VELUX. Takto řešené bytové jednotky poskytují nejen maximální možnost denního světla a proslunění ale také se zde nabízí neotřelé výškové pohledy na město.














