18. ročník soutěže King of daylight / Rodinný Dům
Bungalov
Lenka Kovářová

Název projektu
Bungalov
Vedoucí projektu
Ing. Zuzana Klímková
Název školy
SPŠ stavební Havířov
Rok
2022
Popis projektu
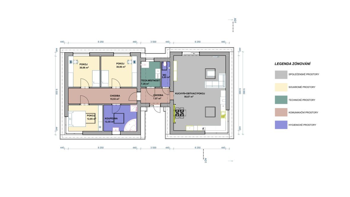
Chtěla jsem vytvořit prosluněný a pohodlný bungalov pro čtyřčlennou rodinu, protože sama mám ráda když je dům minimalistický než překombinovaný. Zvolila jsem tedy půdorys tří obdélníku, které rozdělují místnosti podle užitku. Kuchyň je spojena s obývacím pokojem, protože mi to příjde jako fajn mít tolik pohodlí v jedné místnosti. Zde jsem pak vložila posuvné dveře směrem na terasu. Nad kuchyní a obyvájicím pokojem se nachází dvě střešní okna 1200x1200 od firmy Velux, které pak nádherně prosvětlí místnost. U WC je pak použito střešní okno od Veluxu 600x900.









