18. ročník soutěže King of daylight / Rodinný Dům
RD 000
Ondřej Schustek

Název projektu
Spoluautor projektu
Vedoucí projektu
Název školy
Rok
Popis projektu
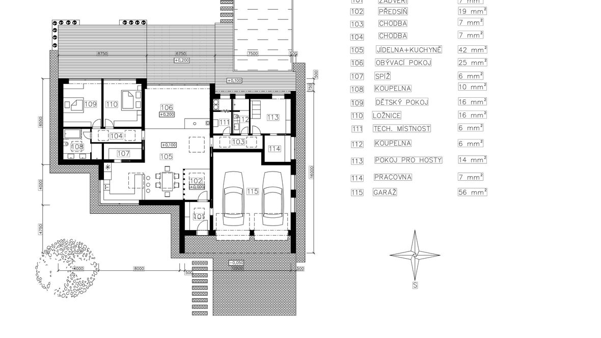
Cílem tohoto domů bylo navrhnout příjemné a dostatečně prosvětlené místo, do kterého se obyvatelé domu budou rádi vracet. Dům je také částečně propojen s okolím díky zelené střeše a vegetačním prvkům. Dům se skládá ze 3 části, z nichž prostřední část, ve které se nachází obývací pokoj, kuchyň a jídelna, je zastřešena pultovou střechou. Zbylé 2 části jsou zastřešeny plochou střechou. Fasáda domu je na bočních částech řešena pohledovým betonem a na části s pultovou střechou je řešena pomocí cementovláknitých, tmavě šedých desek. Prosvětlení místností jako je chodba, zádveří, koupelna, kuchyň a jídelna je řešeno světlíky VELUX s plochým zasklením. Obývací pokoj, ložnice, dětský pokoj a pokoj pro hosty je prosvětlen pomocí francouzských oken s antracitovým rámem.













