18. ročník soutěže King of daylight / Rodinný Dům
Rodinný dům Katarina
Michal Helešic

Název projektu
Rodinný dům Katarina
Vedoucí projektu
Ing. Benovičová
Název školy
Střední škola průmyslová a umělecká Hodonín, příspěvková organizace
Rok
2022
Popis projektu
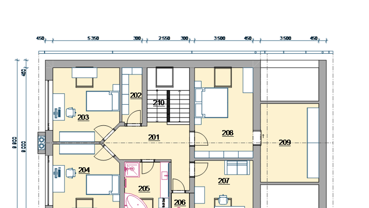
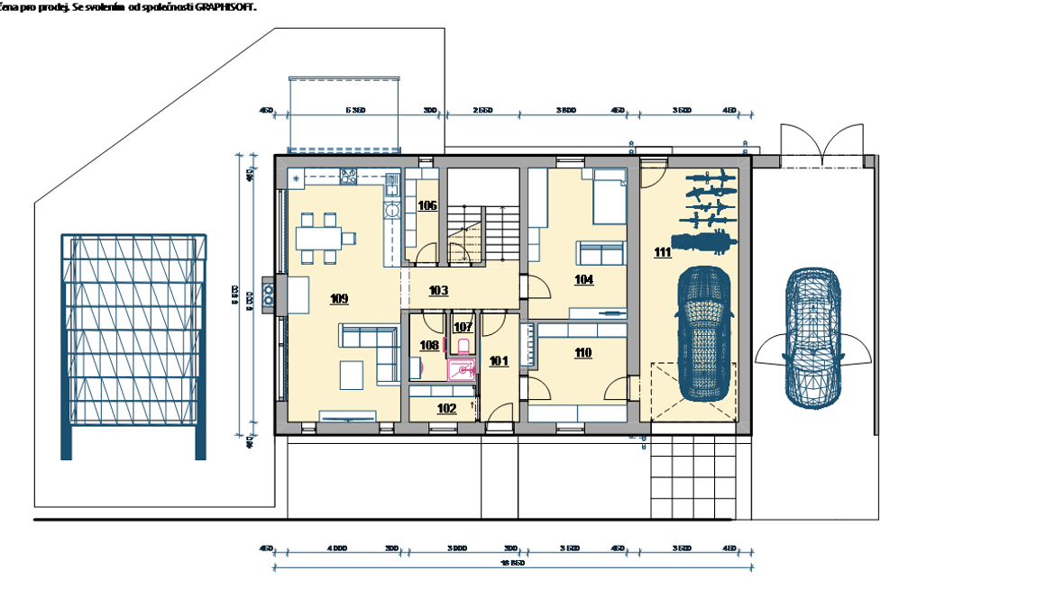
Rodinný dům Katarina je dvou podlažní dům s podkrovím pro pětičlennou rodinu. Dům je vybaven pokojem v přízemí pro prarodiče, v prvním patře jsou dva dětské pokoje a ložnice. Nechybí ani obytná místnost s kuchyní, jídelnou a obývacím prostorem. Dům má dále garáž a velkou zahradu s terasou a bazénem.





