19. ročník soutěže King of daylight / Freestyle
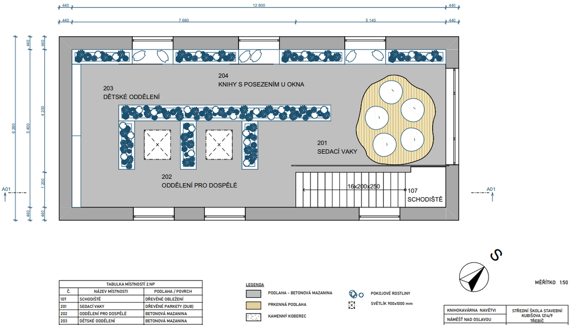
Knihokavárna Navětvi
Anna Vášová

Název projektu
Knihokavárna Navětvi
Vedoucí projektu
Ing. arch. Jiří Šnerch
Název školy
Střední škola stavební Třebíč
Rok
2023
Popis projektu
Ráda bych Vám představila můj projekt, ve kterém jsem se zaměřila návrh nového objetku na místě stavajícího objektu v Náměšti nad Oslavou













