19. ročník soutěže King of daylight / Rodinný Dům
rd CHAIROSCURO
Marek Lojda

Název projektu
Vedoucí projektu
Název školy
Rok
Popis projektu
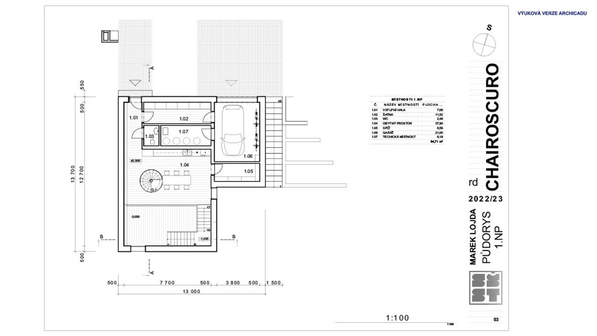
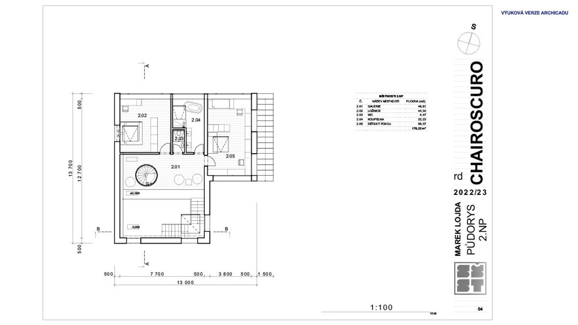
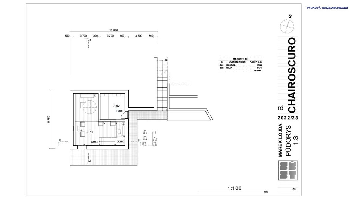
RODINNÝ DŮM CHAIROSCURO JE NAVRŽEN DO MĚSTSKÉ ČÁSTI TŘEBÍČE - NEHRADOV NA PARCELU Č. 18. V TÉTO ČÁSTI BUDE VZNIKAT NOVÁ ČTVRŤ A PROTO BYLO PŘI NÁVRHU NUTNO DODRŽET OBLASTNÍ REGULATIVY A ZAMYSLET SE NAD URBANISTICKÝM ŘEŠENÍM OBJEKTU. DŮM JE UMÍSTĚN NA JÍŽNÍM SVAHU, A TAK ORIENTACÍ OKEN JSOU ZAJIŠTĚNY POTŘEBNÉ TEPELNÉ ZISKY V ZIMNÍCH MĚSÍCÍCH, TAK ABY SPLŇOVAL NÁROKY NA PASIVNÍ DŮM. VYTÁPĚNÍ JE V OBJEKTU ŘEŠENO PODLAHOVÝM TOPENÍM, KDY TEPELNÁ ENERGIE JE PŘIVÁDĚNA Z MÍSTNÍ TEPLÁRNY NA BIOMASU - TTS ENERGO. KONSTRUKCE OBVODOVÉHO ZDIVA OBJEKTU JE TVOŘENA SENDVIČEM Z POHLEDOVÉHO BETONU DO INTERIÉRU, TEPELNĚ IZOLAČNÍ VRSTVOU A BETONOVOU STĚRKOU Z EXTERIÉRU. JE NAVRŽEN PRO ČTYŘČLENNOU RODINU „KNIHOMOLŮ“, PROTO JE HLAVNÍM PRVKEM OBJEKTU KNIHOVNA PŘESAHUJÍCÍ DO VŠECH PODLAŽÍ. ZAHRADA JE ŘEŠENA ROZDĚLENÍM NA DVĚ ČÁSTI – RELAXAČNÍ A UŽITKOVOU, PRO PĚSTOVÁNÍ VLASTNÍCH POTRAVIN. TYTO ČÁSTI SE VZÁJEMNĚ PROPOJUJÍ BETONOVOU ZÍDKOU A OVOCNÝMI STROMY, KTERÉ ZAJISŤUJÍ POHODLNÉ KLIMA NA POZEMKU BĚHEM CELÉHO ROKU. NA ZAHRADĚ JE DÁLE JEZÍRKO, KTERÉ TAKÉ SLOUŽÍ JAKO ZASAKOVACÍ NÁDRŽ DEŠŤOVÉ VODY. NÁZEV RODINNÉHO DOMU POCHÁZÍ Z ITALSKÉHO SLOVA CHAIROSCURO - ŠEROSVIT. JE TO REAKCE NA HRU V NÁVRHU SE SVĚTLEM A STÍNEM TAK, ABY UMOCNILY JEDNOTLIVÝ VÝZNAM MÍSTNOSTÍ.
















