19. ročník soutěže King of daylight / Rodinný Dům
RD ERIS
Tomáš Nováček

Název projektu
Vedoucí projektu
Název školy
Rok
Popis projektu
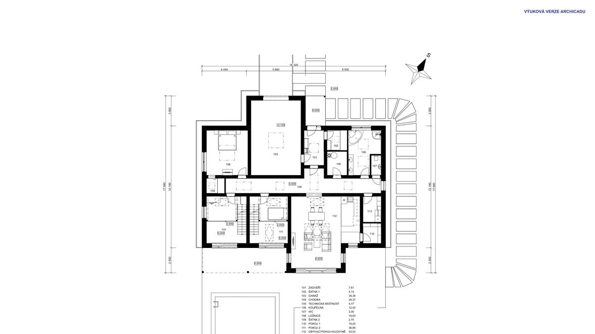
HLAVNÍ MYŠLENKA Myšlenkou byl rodinný dům, který splní všechny potřeby čtyřčlenné rodiny a umožní příjemný život. Bude maximálně využívat přírodního světla a pomocí správného rozmístění oken i účinně provětrávat místnosti. ARCHITEKTONICKÉ A DISPOZIČNÍ ŘEŠENÍ Jedná se o jednopodlažní RD. Je zastřešen dvěma typy střech. Pod šikmou střechou, která se skládá ze dvou rovin různého sklonu, je obývací pokoj s kuchyní. V této části domu se nachází také dětské pokoje s galerií. Zbytek budovy je zastřešen plochou, vegetační střechou. Součástí domu je garáž, která má sníženou výšku střechy a nabourává jednotvárnost budovy. Fasáda je tvořena z borovicového dřeva, pouze vystupující část obývacího pokoje je obložena kamenem a garáž je z pohledového betonu. ŘEŠENÍ PROSVĚTLENÍ K osvětlení obytných místností jsou použita francouzská okna, která jsou orientovaná na jih. Na střeše jsou umístěna střešní okna VELUX orientovaná na sever a na jih, díky nimž vzniká celodenní přísun světla pro obývací pokoj a galerie v dětských pokojích. Prosvětlení místností pod plochou střechou zajišťují světlíky VELUX.







