19. ročník soutěže King of daylight / Rodinný Dům
RD - Floptropical
Martin Suchánek

Název projektu
Vedoucí projektu
Název školy
Rok
Popis projektu
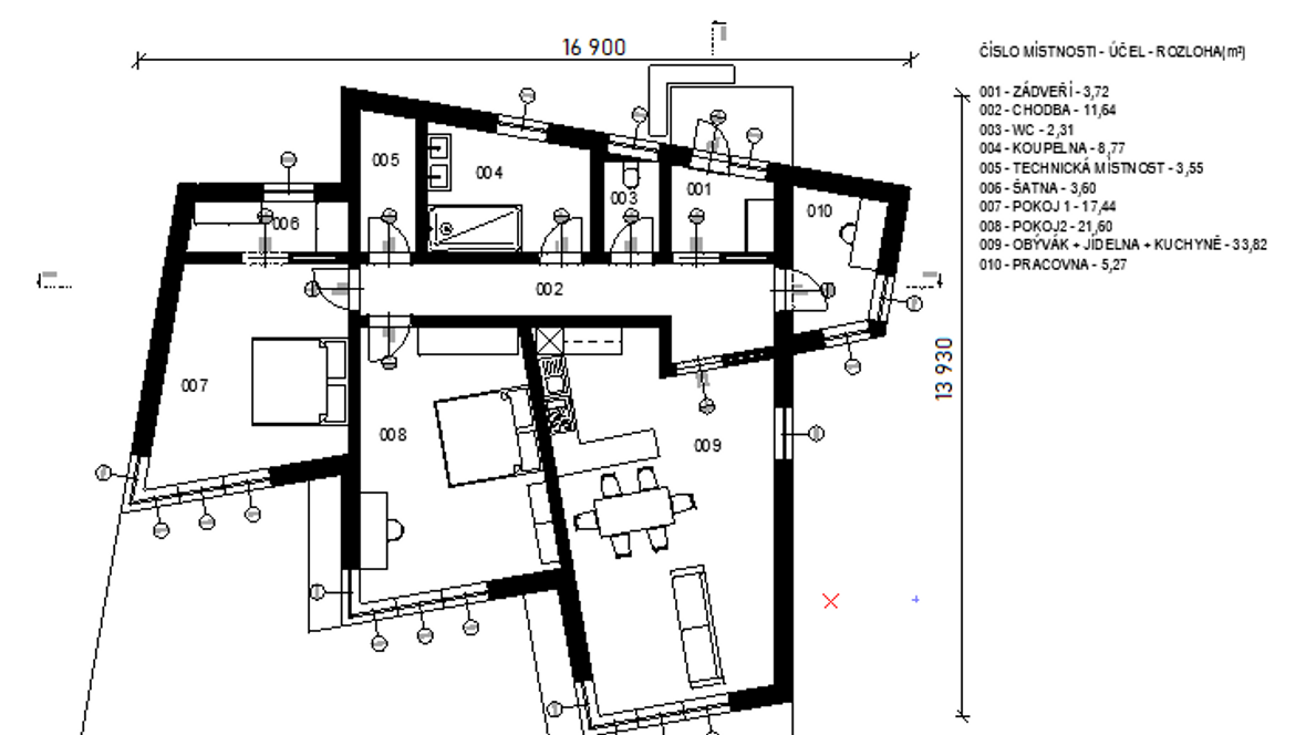
Hlavním motivem, kterým jsem se řídil u navrhování domu Floptropical, byla myšlenka souznění světla a přírody. Dům je vhodný pro čtyřčlennou rodinu, proto pro mě bylo důležité udržet nádech domu klidný a pohodový. Myšlenku využití co nejvyššího příjmu denního světla, jsem aplikoval v obytných místnostech orientovaných na jih. Jednotlivé pokoje jsou pootočené o pár stupňů a každý je o kousek posunut směrem dozadu. Díky tomu mají pokoje více soukromí, a taktéž jsou osvětleny vždy v jinou sluneční dobu. Rád bych zdůraznil fakt, že ložnice je speciálně navržená, aby si její obyvatelé mohli denně užívat pohled na západ slunce. Na druhou stranu obývací pokoj je situován za účelem prosvětlení pokoje nejdéle. Zároveň má každý z pokojů možnost průchodu na venkovní terasu. Nechybí ani prostorná šatna a pracovna. Konstrukce je z konopného betonu. Řídil jsem se tím, aby byla budova ekologická a zapadala krásně do okolí díky využití prvků ze dřeva, kamene a vegetační střechy.










