19. ročník soutěže King of daylight / Rodinný Dům
Rodinný dům Claire
Klára Fabiánová

Název projektu
Vedoucí projektu
Název školy
Rok
Popis projektu
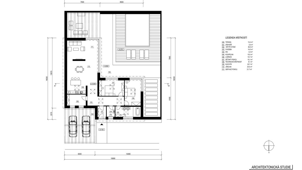
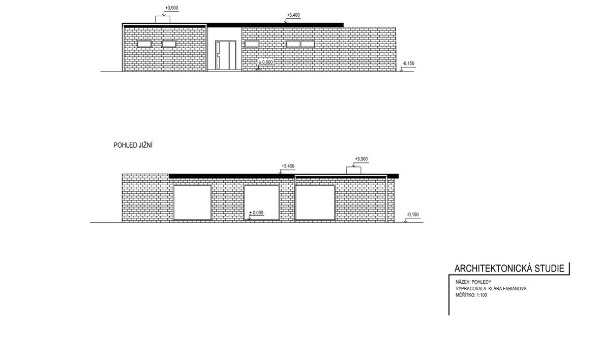
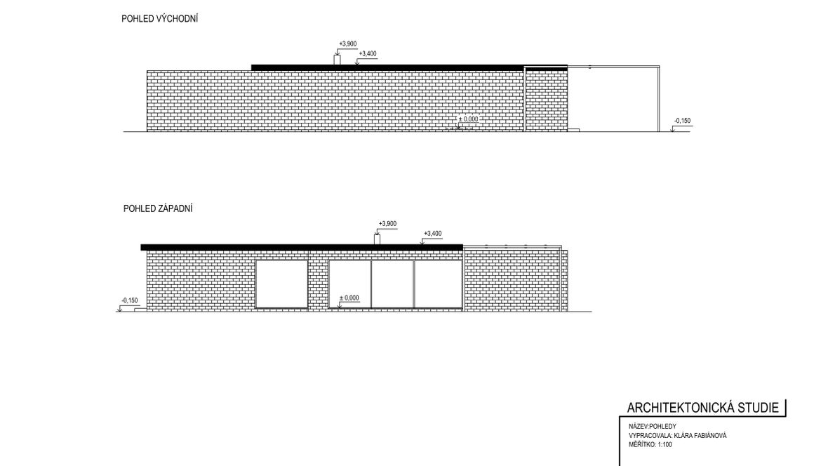
MYŠLENKA Hlavním cílem bylo vytvořit malý, jednopodlažní, praktický domek s minimální údržbou a spotřebou, který bude dostatečně prosvětlen a vytvářet tak příjemné prostředí pro bydlení. ARCHITEKTONICKÉ A DISPOZIČNÍ ŘEŠENÍ Celý dům, zastřešený zelenou střechou, je navržen v moderním stylu s přirozenou návazností interiéru a venkovního prostředí. Tudíž k životu využívá celý svůj prostor. Nachází se zde parkovací stání pro dvě auta, které je situováno na sever. Všechny obytné místnosti jsou obohaceny o velká francouzská okna s přímým výstupem na terasu. Všechny cesty tak vedou na společnou zahradu a slouží tak jako hlavní setkávací středisko, což byla jedna z ústředních myšlenek, která provázela koncept tohoto projektu. ŘEŠENÍ PROSVĚTLENÍ Právě díky výše zmiňovaným francouzským oknům proniká do obytných místností co nejvíce přírodního světla. Ta prosvětlují dětský pokoj, ložnici a obývací pokoj s kuchyní a jídelnou. Celý interiér je navíc obohacen výrazným počtem střešních designových světlíků se zaobleným sklem CFU, CVU, ISU 1093 v rozměrech 90x90 cm od firmy VELUX.











