20. ročník soutěže King of daylight / Build for Life - 3. místo
project H-3D
Tomáš Pálka

Název projektu
project H-3D
Vedoucí projektu
Ing. Jana Leischnerová
Název školy
Střední průmyslová škola stavební Brno
Rok
2024
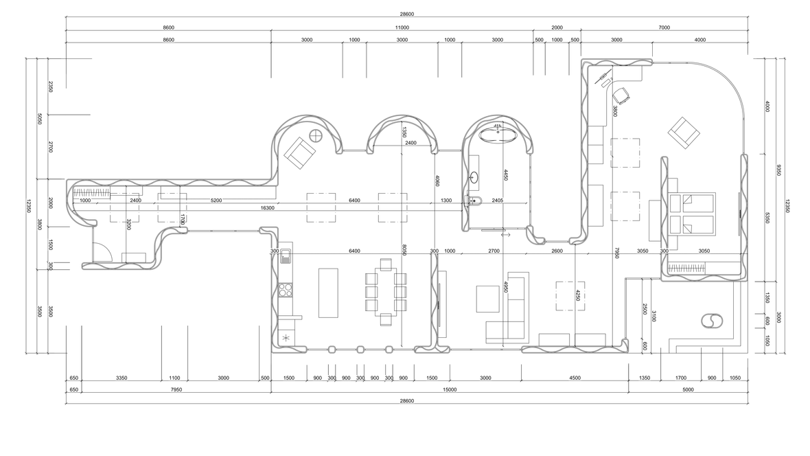
Popis projektu
Dům H-3D je postaven s téměř nulovým odpadem a snižuje spotřebu vody až o 99 % ve srovnání s tradičními stavebními metodami. Byla použita technologie 3D tisknutí z betonu a tímto projektem bych chtěl zvýraznit potenciál této metody a jak by mohla revolucionizovat způsob stavby, aniž by jsme museli obětovat vizuální stránku stavby. V projektu byly použity Designové světlíky s plochým sklem pro elegantní způsob osvětlení interiéru.













