20. ročník soutěže King of daylight / Freestyle
PD Aranchar
Tomáš Vlk

Název projektu
PD Aranchar
Vedoucí projektu
Ing. Radek Wasserbauer
Název školy
Střední průmyslová škola stavební akademika Stanislava Bechyně, Havlíčkův Brod, Jihlavská 628
Rok
2023/2024
Popis projektu
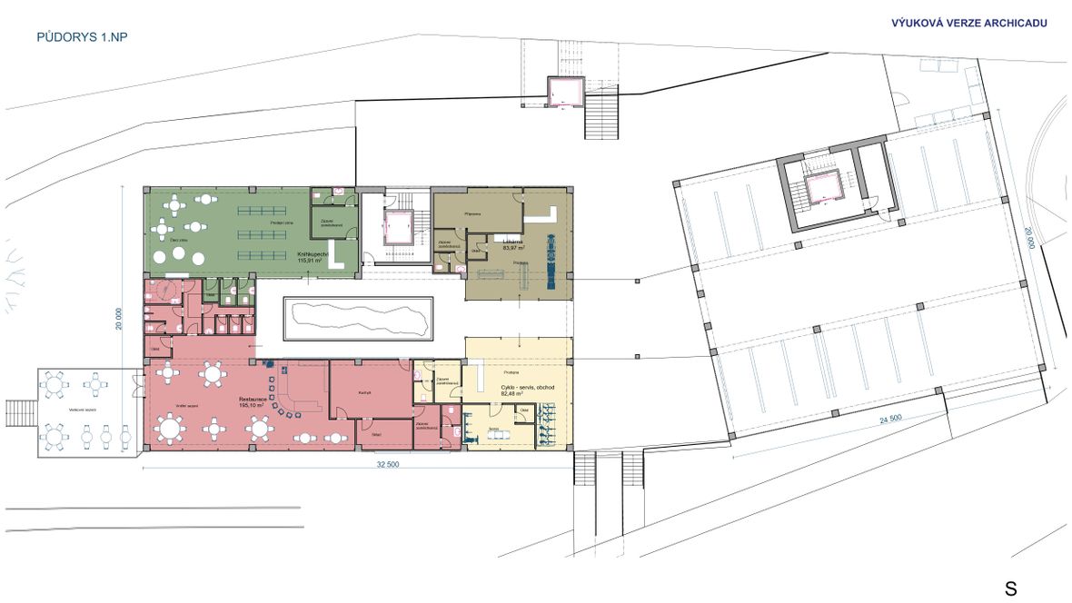
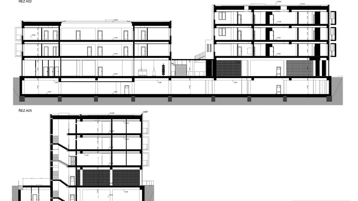
Jedná se o dvouvěžový polyfunkční dům v ulici Tomáše Bati v Třebíči. Celý objekt je podsklepený garážemi, v jedné části domu se nacházejí polyfunkce a v druhé byty. Při navrhování byly použity světlovody Velux pro lepší prosvětlení nejvrchnějších pater.



















