20. ročník soutěže King of daylight / Freestyle
Polyfunkční objekt v Třebíči
Zuzana Němcová

Název projektu
Polyfunkční objekt v Třebíči
Vedoucí projektu
Ing. arch. Vít Wasserbauer
Název školy
Střední průmyslová škola stavební Stanislava Bechyně
Rok
2023/2024
Popis projektu
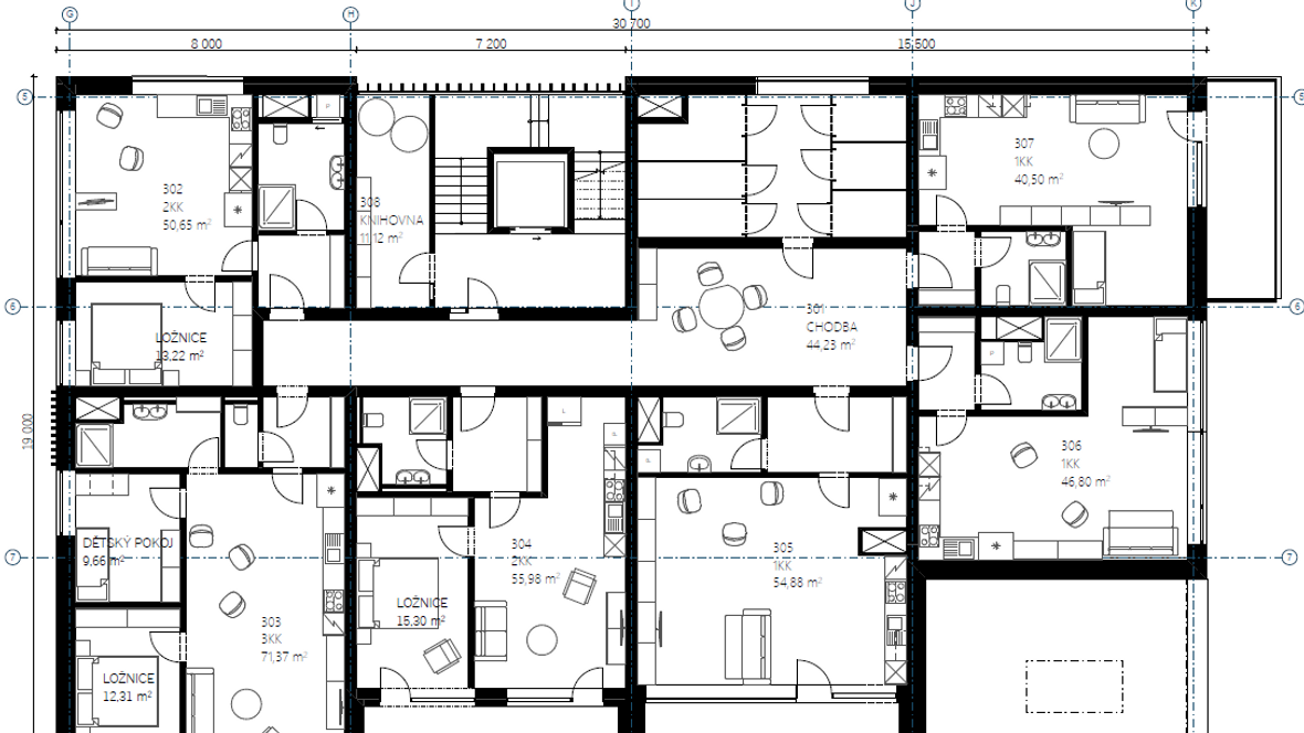
Objekt se nachází ve městě Třebíč. Budova je rozdělena na dvě části v jedné se nachází byty (4+kk, 3+kk, 2+kk,1+kk). V druhé části se nachází kavárna, obchod, squash a zrcadlový sál, který má vlastní recepci. Střechu budovy zdobí světlíky, kde je také rooftop bar a atrium, které prosvětluje celou budovu.V obou budovou je výtah. Střecha je plochá vegetační.







