20. ročník soutěže King of daylight / Rodinný Dům
RD Lignum
Adam Pravda

Název projektu
Vedoucí projektu
Název školy
Rok
Popis projektu
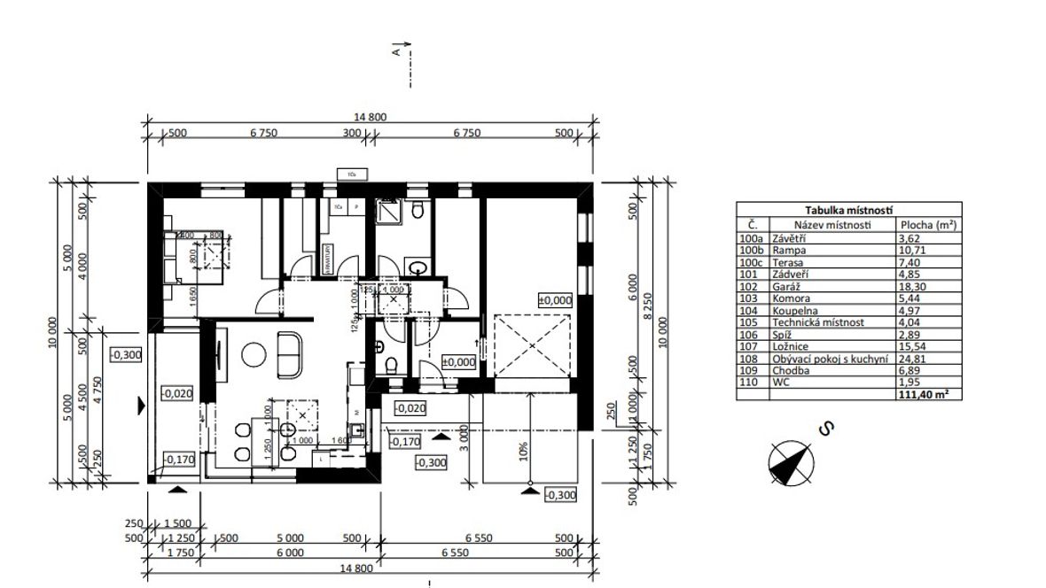
HLAVNÍ MYŠLENKA Hlavní myšlenkou projektu bylo vytvořit rodinný dům pro dvě osoby, který bude v harmonii s krajinou a nebude rušit její přirozený charakter. Zároveň je kladen důraz na moderní a estetické prvky, které jsou zakomponovány do stavby tak, aby měly přidanou hodnotu a zároveň zapadaly do krajinného rázu okolí. Dům je navrhnut tak, aby docházelo k co nejmenší produkci emisí a byl co nejméně energeticky náročný. ARCHITEKTONICKÉ ŘEŠENÍ Jelikož byl kladen důraz na harmonii s přírodou je dům obložen termodřevem, které má estetické, ale zároveň i výborné technické vlastnosti. Střecha je tvořena z vegetačního souvrství, které udržuje v domě vyvážené vnitřní klima. Hlavním prvkem domu jsou rovněž velké skleněné plochy, které umožňují přístup velkého množství zdraví důležitého přirozeného světla. Na střeše jsou rovněž umístěny dva designové světlíky VELUX se zaobleným sklem a jeden výlez na plochou střechu VELUX. TECHNICKÉ ŘEŠENÍ Na ploché střeše jsou instalovány solární panely, ty jsou napojeny na tepelné čerpadlo, které vytápí dům. Na ploché střeše jsou umístěny dvě vpusti, které shromažďují vodu do retenční nádrže. Dešťovou vodu je potom možné distribuovat pro zalévání zahrady nebo přímo do domu pro splachování WC. Výlez na plochou střechu VELUX, slouží jednak k prostupu světla do budovy, ale také jako přístupné místo pro výlez na plochou střechu v případě údržby.










