21. ročník soutěže King of daylight / Build for Life
Alpská vila Boris
Martin Hladík

Název projektu
Vedoucí projektu
Název školy
Rok
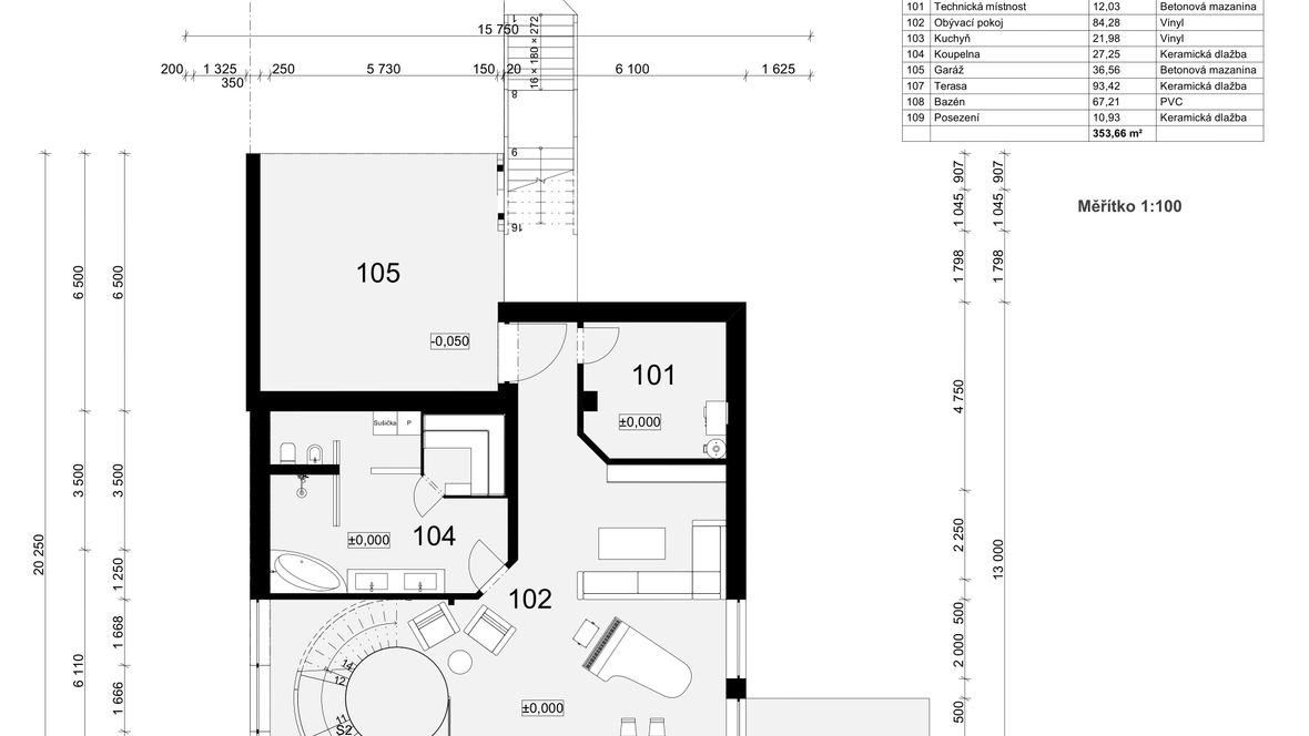
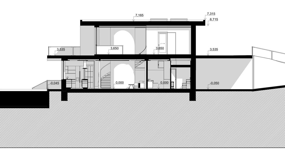
Popis projektu
Tuto vilu jsem navrhl s velkým ohledem na prosvětlenost a také udržitelnost stavby. Stavba má tzv. zelené fasády a zelenou plochou střechu a díky těmto přírodním materiálům velmi pomáhá udržovat příjemnou teplotu v objektu. V zemině v zahradě je zakopaná retenční nádrž na dešťovou vodu, která slouží na zalévání a také jako tzv. šedá voda na splachování. Objekt má tepelné čerpadlo a automatickou rekuperaci vzduchu. Díky své pozici v horách je elektřina vyráběna pomocí malé vodní turbíny asi 300m od vily, která umožňuje ekologickou, udržitelnou a nepřetržitou výrobu elektřiny a proto není zapotřebí žádného akumulátoru na úschovu elektřiny. Voda je brána z místních tekoucích řek a ošetřována na stav pitné vody. Stavba je postavena z ekologicky nezávadných cihelných tvarovek s velmi dobrou tepelnou izolací. Všude jsou navrženy trojskla, která skvěle izolují ať už od zimy, ale také od hluku. Rámy oken a dveří jsou z kvalitních kombinovaných materiálů (hliník + dřevo). Střecha je zateplena pomocí recyklovaného nehořlavého papíru - Celulóza a dřevovláknitých izolačních desek. Krytina je plastová - Ekoternit, vyrábí z PVC, kdy jeho podstatnou složku tvoří recyklovaný materiál. Dlažby a obklady jsou kamenné z místní lokality. Podlahy v interiéru jsou z masivních dřevěných prken a dřevěných parket z regionálně pěstovaného dřeva. Jsou použity přírodní barvy, lepidla a laky na rostlinné bázi, bez rozpouštědel a s nízkým obsahem těkavých organických látek.













