21. ročník soutěže King of daylight / Build for Life
Rekonstrukce rekreační chaty Fialka
Natálie Fialová

Název projektu
Vedoucí projektu
Název školy
Rok
Popis projektu
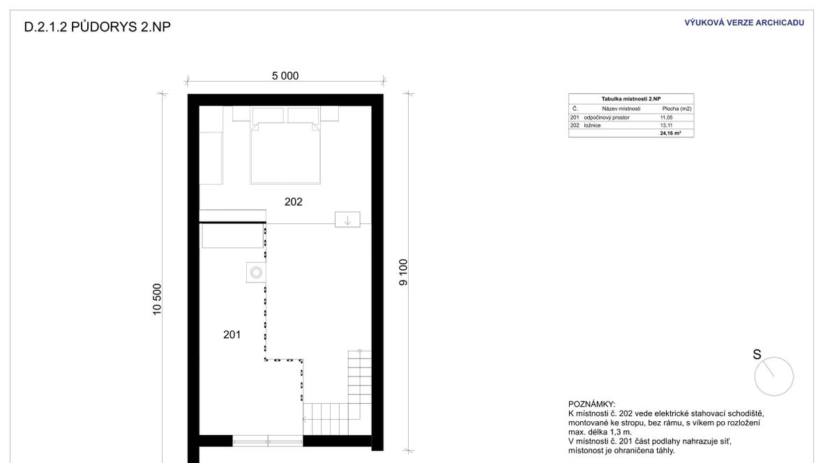
Chata Fialka představuje přestavbu původní neekonomické chaty, porušující několik základních norem na moderní a udržitelný objekt s minimální spotřebou energie. Nový stav chaty je zařízen komfortně tak, že se Vám dozajista nebude chtít ji opouštět. Tvořena je z energeticky příznivých materiálů, především ze dřeva. Z něj je vytvořena nejen fasáda, ale uplatňuje se i v interiéru. Čímž je chatě dodáváno na estetickém dojmu. Dřevo je zároveň skvělý přírodní, obnovitelný materiál s nízkou uhlíkovou stopou. Střecha a boční strany chaty jsou obloženy falcovaným plechem v antracitovém odstínu, který zajištuje vysokou životnost a dobře chrání dřevo před vlhkostí a případnou vodou. Jedinou nevýhodou tohoto prvku je možné přehřátí objektu, to ale minimalizuje vnitřní nainstalovaná rekuperace. Chata má dále velká okna orientovaná na jih přivádějící solární zisky v zimě, a naopak v létě pomocí venkovních žaluzií ochrání objekt před přehříváním. Doplňují je také střešní okna VELUX, jenž přivádějí dostatek světla do celého objektu. Mezi nimi najdeme i solární panely pro aktivní využití obnovitelné energie. Důraz je kladen také na hospodaření s vodou. Retenční nádrže nám podporují soběstačnost celého objektu – opětovně využívají vodu pro splachování a závlahu zahrady. A jako u každé rekreační chaty ani u této nechybí krásná zahrady plná zeleně a rostlin.











