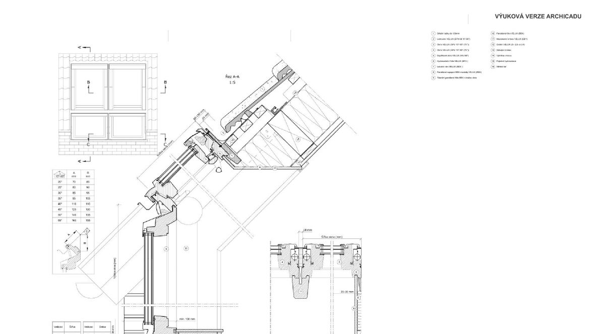
21. ročník soutěže King of daylight / Freestyle
Areál Vysoká
Hana Šlechtová

Název projektu
Areál Vysoká
Vedoucí projektu
Ing. Miloslav Beran
Název školy
Střední průmyslová škola stavební akademika Stanislava Bechyně Havlíčkův Brod
Rok
2024/2025
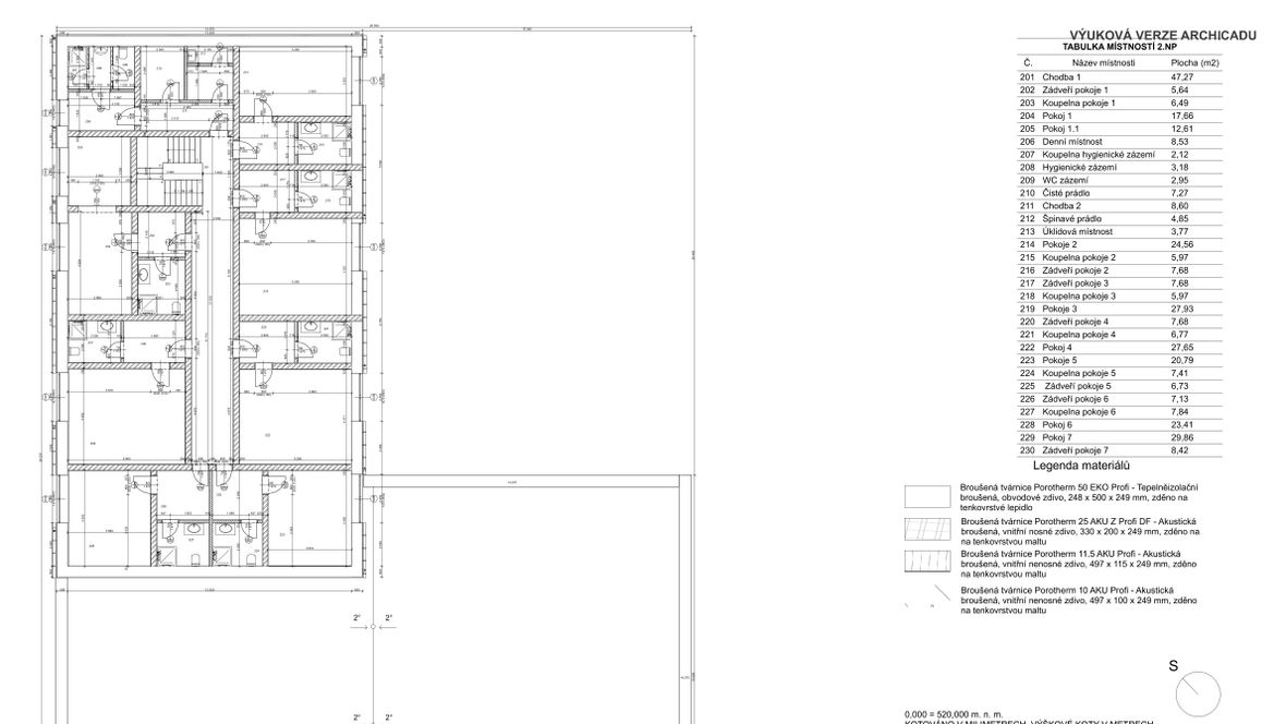
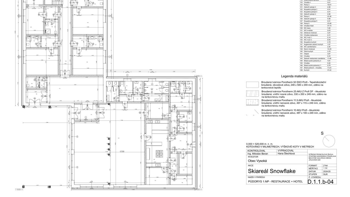
Popis projektu
Projekt se zaměřuje na budovu hotelu s restaurací v areálu. Kapacita objektu se pohybuje okolo 40 lidí. Koncept fasády vypovídá, že se objekt nachází v přírodě.


















