21. ročník soutěže King of daylight / Rodinný Dům
2024/2025
Stejskal Ondřej

Název projektu
RD
Vedoucí projektu
Kopecká Monika
Název školy
Průmyslová střední škola Letohrad
Rok
2024/2025
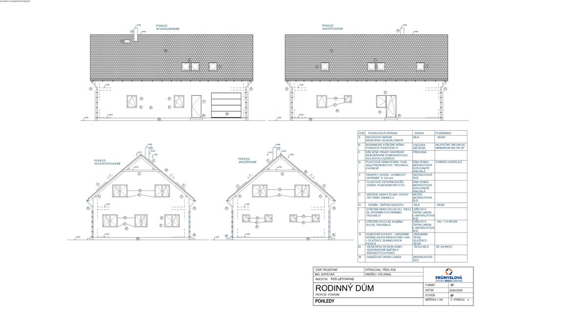
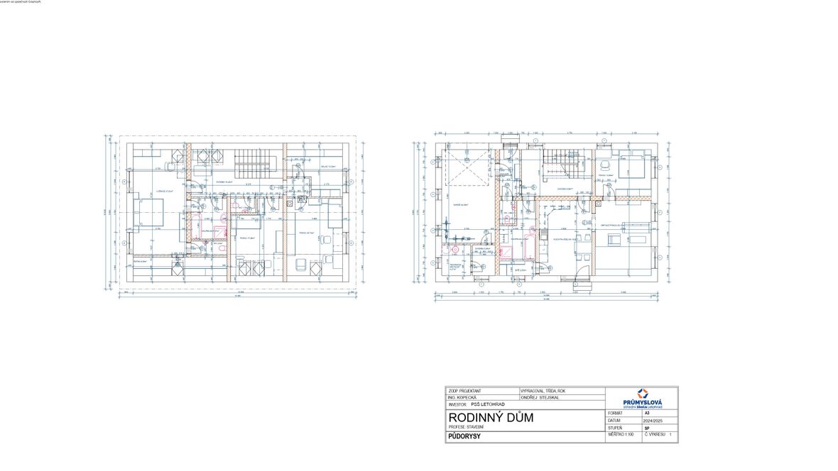
Popis projektu
Tento rodinný dům je navržen jako vícepodlažní podlažní, 1np, 2np V přízemí se nachází tyto místnosti – zádveří/vchod, garáž, technická místnost, chodba, WC, koupelna, kuchyň+Jídelna, obývací pokoj, pokoj, prostor schodiště. V podkroví se nachází tyto místnosti – chodba, 2x pokoj, ložnice, koupelna,2x WC, sklad, šatna.







