21. ročník soutěže King of daylight / Rodinný Dům
RD Villa Horizont
Tomáš Voborník

Název projektu
RD Villa Horizont
Vedoucí projektu
Ing. Beáta Kunáková
Název školy
SPŠS Dušní
Rok
2025
Popis projektu
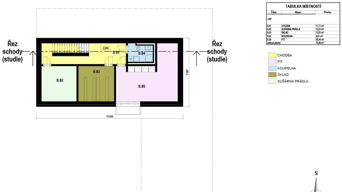
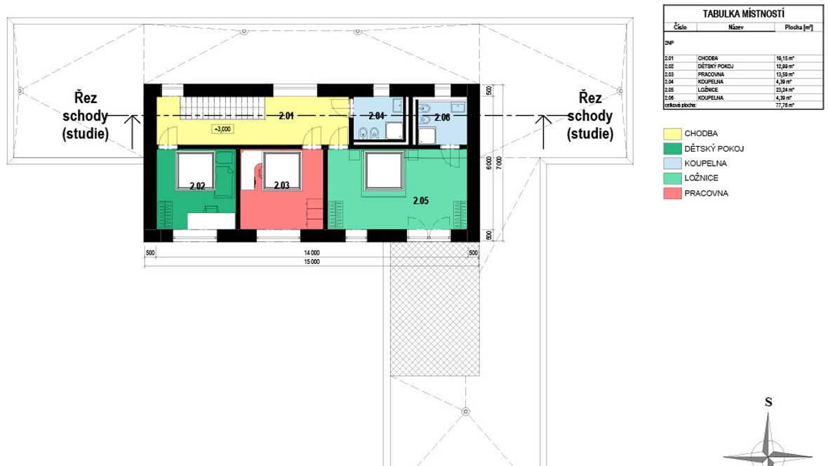
Jedná se o dvougenerační rodinný dům s dvěma bytovými jednotkami z toho jedna bytová jednotka slouží pro tří člennou rodinu, je tří podlažní (částečně podsklepená s patrem) a druhá bytová jednotka je navržena jako jednopodlažní pro starší pár se ztíženou schopností pohybu. Pro každou bytovou jednotku je navrženo parkovací stání. V podsklepené části je mimo jiné navržená i domácí posilovna.














