21. ročník soutěže King of daylight / Rodinný Dům
2025
Tereza Sýkorová

Název projektu
Vedoucí projektu
Název školy
Popis projektu
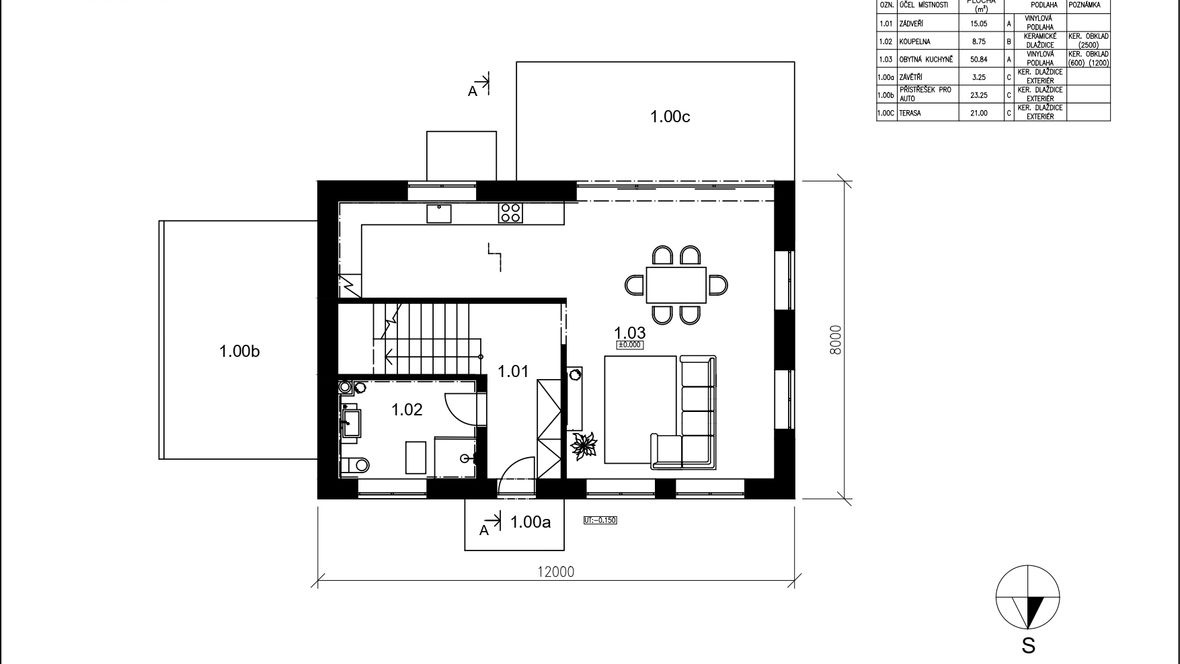
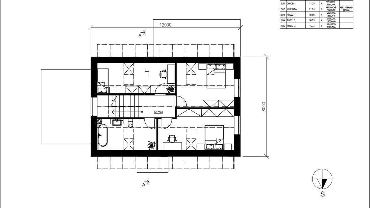
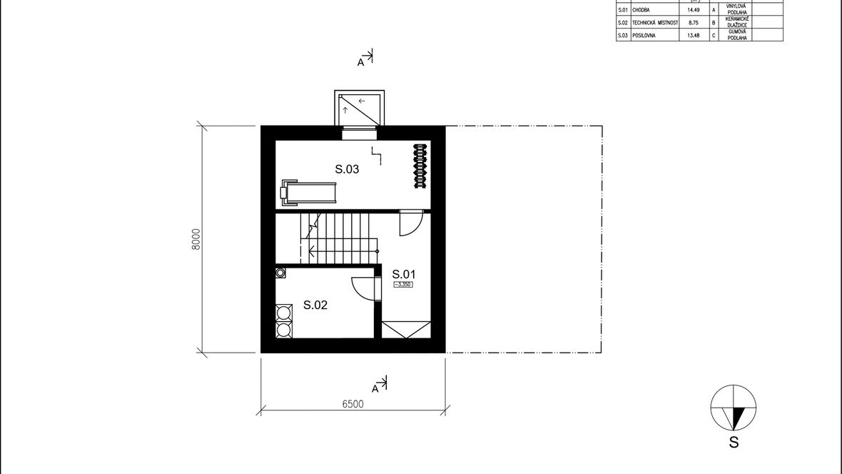
RODINNÝ DŮM JE NAVŽEN DO MALEBNÉ OBCE VALEČ V KARLOVARSKÉM REGIONU. OBEC MÁ V ZA CÍL PŘIVÉST MLADÉ RODINNY S DĚTMI, PRO KTERÉ JE TAKÉ DŮM KONCIPOVÁN. VALEČ JE VHODNÁ LOKALITA PRO KLIDNÝ ŽIVOT NEDALEKO PŘÍRODY, ALE ZÁROVEŇ S MOŽNOSTÍ DOJÍŽDĚNÍ DO NEDALEKÝCH KARLOVÝCH VARŮ, NABÍZÍ KULTURNÍ A PRACOVNÍ PŘÍLEŽITOSTI. ZA ZMÍNKU TAKÉ STOJÍ BOHATÁ HISTORIE OBCE, ZAČÍNAJÍC JIŽ ROKU 1526, KDY OBEC SPADALA POD MAJETEK JAKUBA KYŠPERSKÉHO, KTERÝ SE ZASLOUŽIL O STAVBU POZDNĚ GOTICKÉHO ZÁMKU. TEN DNES NESE BAROKNÍ PODOBU, PODOBNĚ JAKO KOSTEL NEJSVATĚJŠÍ TROJICE. DISPOZICE DOMU, PŘEDEVŠÍM PŘÍZEMÍ, JE VELMI OTEVŘENÁ A VZDUŠNÁ DÍKY FRANCOUZSKÉMU OKNU, KTERÉ NABÍZÍ VÝHLED DO SADU, KTERÝ ZDE, DLE URBANISTISKÉ STUDIE MÁ STÁT. Z FRANCOUZSKÝCH DVEŘÍ JE TAKÉ MOŽNÝ PŘÍMÝ VSTUP NA VENKOVNÍ TERASE A ZAHRADU. V PŘÍZEMÍ NACHÁZÍ KOUPELNA A SPOLEČENSKÁ ZÓNA S KUCHNÍ, JÍDELNOU A OBÝVACÍM POKOJEM. SUTERÉN SLOUŽÍ PŘEDEVŠÍM JAKO TECHNICKÁ ČÁST OBJEKTU, VE KTERÉ SE MIMO JINÉ UKRÝVA DOMÁCÍ POSILOVNA, DO KTERÁ PROUDÍ DENNÍ DVĚTLO POCÍ OSVĚTLOVACÍ ŠACHTY. PODKROVÍ JE URČENO JAKO KLIDOVÁ ČÁST OBJEKTU A NABÍZÍ DVA PROSTORNĚJŠÍ POKOJE S POMĚRNĚ VELKÝM MNOŽSTVÍM ÚLOŽNÉHO PROSOTRU A JEDEN MENŠÍ, KTERÝ MŮŽE SLOUŽIT JAKO DĚTSKÝ POKOJ POPŘÍPADĚ PRACOVNA. NA PATŘE JE ROVNĚŽ UMÍSTĚNA DRUHÁ KOUPELNA. DŮM KOMBINUJE MODERNÍ A TRADIČNÍHO ARCHITEKTONICKÉ PRVKY TAK, ABY ZAPADL DO HISTORICKÉHO RÁZU CENTRA OBCE. FASÁDU TVOŘÍ PŘÍRODNÍ MATERIÁLY- DŘEVO, KÁMEN A MODERNÍ BETONOVÁ STŘEŠNÍ KRYTINA. STAVBA SPOLU SE ZAHRADNOU TVOŘÍ IDEÁLNÍ PROSTOR PRO KLIDNÝ RODINNÝ ŽIVOT S DŮRAZEM NA SOUKROMÍ A KONTAKT S PŘÍRODOU. CELKOVÝ KONCEPT TAK PROPOJUJE ESTETIKA A FUNKČNOST.







