Rodinný dom
Rodinný dom LUNA
Radovan Živický

Názov projektu
Vedúci projektu
Názov školy
Rok
Opis vášho projektu
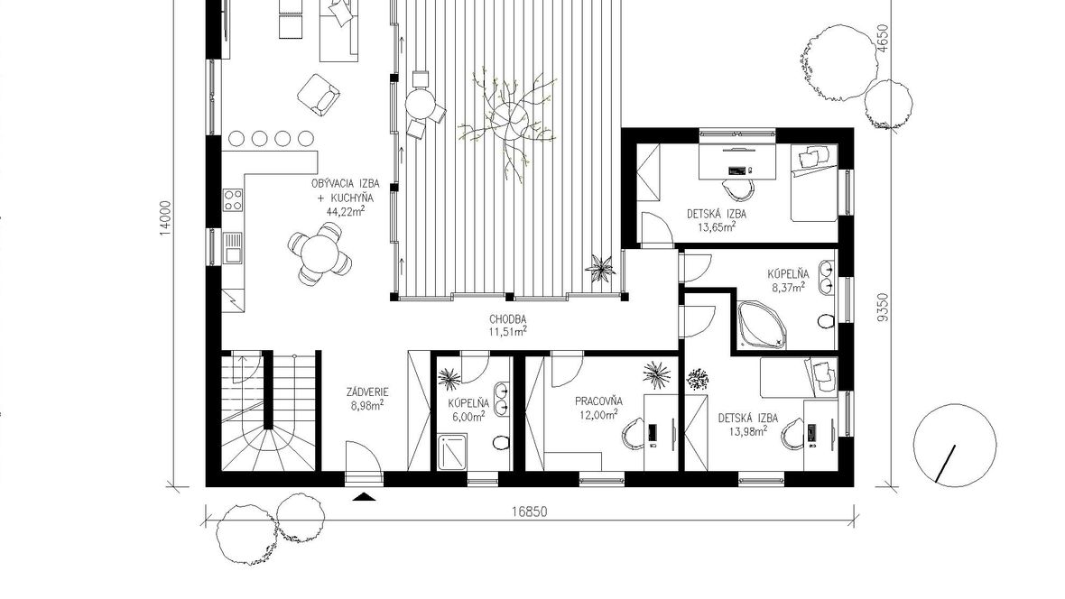
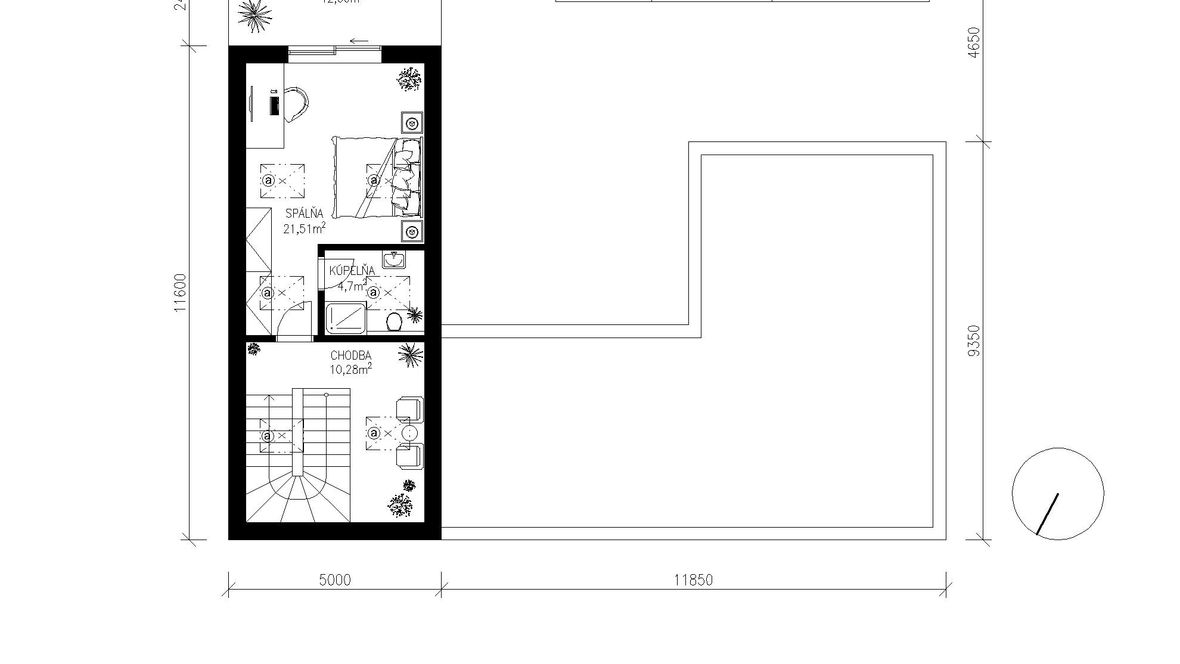
Rodinný dom LUNA je navrhnutý ako moderný dom pre štvorčlennú rodinu. Dokonale spĺňa ekologické, dispozičné a funkčné podmienky pre život. Rodinný dom pozostáva z dvoch nadzemných podlaží. Prvé nadzemné podlažie je rozdelené na dennú a nočnú časť. Denná časť prvého nadzemného podlažia je prepojená s exteriérom prístupom na terasu pomocou posuvných veľkoformátových okien. Na druhom nadzemnom podlaží sa nachádza rodičovská spálňa s kúpeľňou a balkónom. Na zastrešení rodinného domu sú použité dva typy striech - plochá a sedlová. Plochá strecha zastrešuje veľkú časť prvého nadzemného podlažia a je navrhnutá ako zelená strecha. Druhé nadzemné podlažie je zastrešené sedlovou strechou. Prísun čerstvého vzduchu a denného svetla do miestností na druhom podlaží je zabezpečený najmä prostredníctvom strešných okien VELUX GGU 006621 veľkosti MK06 s diaľkovým ovládaním.















