14. ročník súťaže Rodinný Dom - 3. miesto
Ing. Kucharová, Ing. Zsóka, PhD., Ing. arch. Buchová
Matúš Šaray

Názov projektu
Spoluautor projektu
Vedúci projektu
Názov školy
Rok
Opis vášho projektu
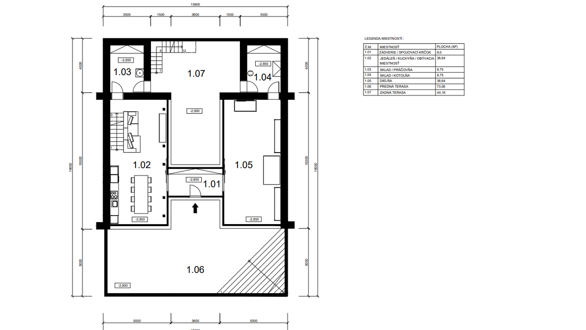
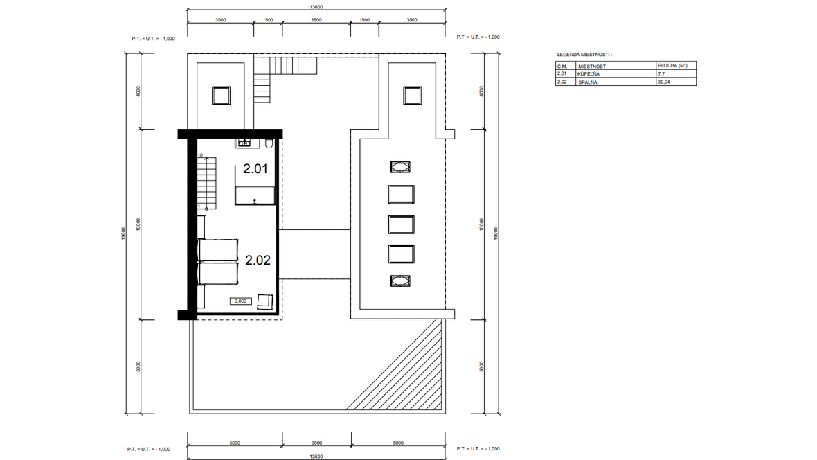
Ideou domu je vytvorenie vhodného priestoru pre remeselníka pracujúceho s drevom. Návrh pozostáva s dvoch navzájom prepojených objektov dispozične tvorený pre 2 osoby. Dvojpodlažná časť slúži ako obytná sekcia a prízemná časť ako pracovná sekcia. Obytná sekcia: Na prvom podlaží sú situované všetky priestory nutné pre bežný chod domácnosti ako jedáleň, kuchyňa, obývacia miestnosť a sklad a na druhom podlaží sa nachádza kúpeľňa a spálňa. Pracovná sekcia : Ústredný priestor pracovnej sekcie tvorí dielňa a technické zázemie. Celý objekt je čiastočne zapustený do terénu, čím nenarúša vizuálnu stránku okolia. Zelená strecha je z východnej a západnej strany napojená na fasádu a plynule sa spája s terénom. Vnútorné priestory sú presvetlené zasklenými plochami, ktoré zabezpečujú kontakt s okolím. Tienenie je navrhnuté z nastaviteľných drevných vertikálnych lamiel. Minimalistická stavba umožňuje spojenie súkromnej a pracovnej sféry, pričom sa jednotlivé funkcie nenarúšajú.











