14. ročník súťaže Rodinný Dom
nie je
Silvia Hadušovská

Názov projektu
Spoluautor projektu
Vedúci projektu
Názov školy
Opis vášho projektu
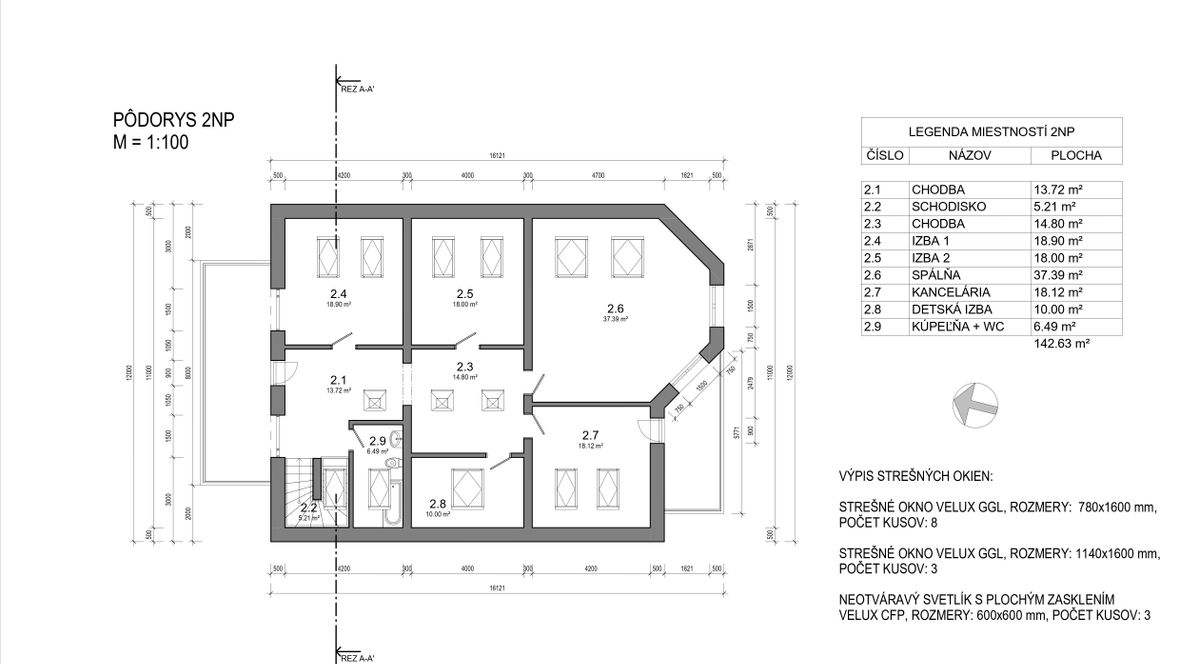
Soprano house je dvojpodlažný rodinný dom, ktorý disponuje veľkými presvetlenými priestormi. Nachádza sa v ňom 5 izieb určených na spanie a obývacia miestnosť. Presvetlenie každej miestnosti zabezpečujú veľké okná spolu s francúzskymi oknami, a na poschodí kývne strešné okná Velux rady GGL s horným ovládaním v celodrevenom prevedení, rozmerov 780x1600 mm a 1140x1600 mm, a neotváravé svetlíky s plochým zasklením Velux rady CFP rozmerov 600x600 mm. Vďaka veľkému počtu okien máme zabezpečený celodenný prísun slnečného svetla do rodinného domu. Nachádzajú sa v ňom izby veľkých rozmerov, takže tam môže pohodlne bývať aj viacčlenná rodina. Ako oddychové a relaxačné priestory v objekte nám slúži terasa umiestnená na prízemí a dva balkóny, ktoré sa nachádzajú na poschodí. V objekte sa ďalej nachádzajú dve kúpeľne, toaleta, technická miestnosť, komora, do ktorej pohodlne vchádzame priamo z kuchyne a kancelária umiestnená na poschodí, ktorá môže taktiež slúžiť aj ako hracia miestnosť. Soprano house je určený pre každého, kto má rád veľa osobného priestoru a dotyky slnečných lúčov.












