14. ročník súťaže Rodinný Dom
.
Mária Farkašová

Názov projektu
Spoluautor projektu
Vedúci projektu
Názov školy
Rok
Opis vášho projektu
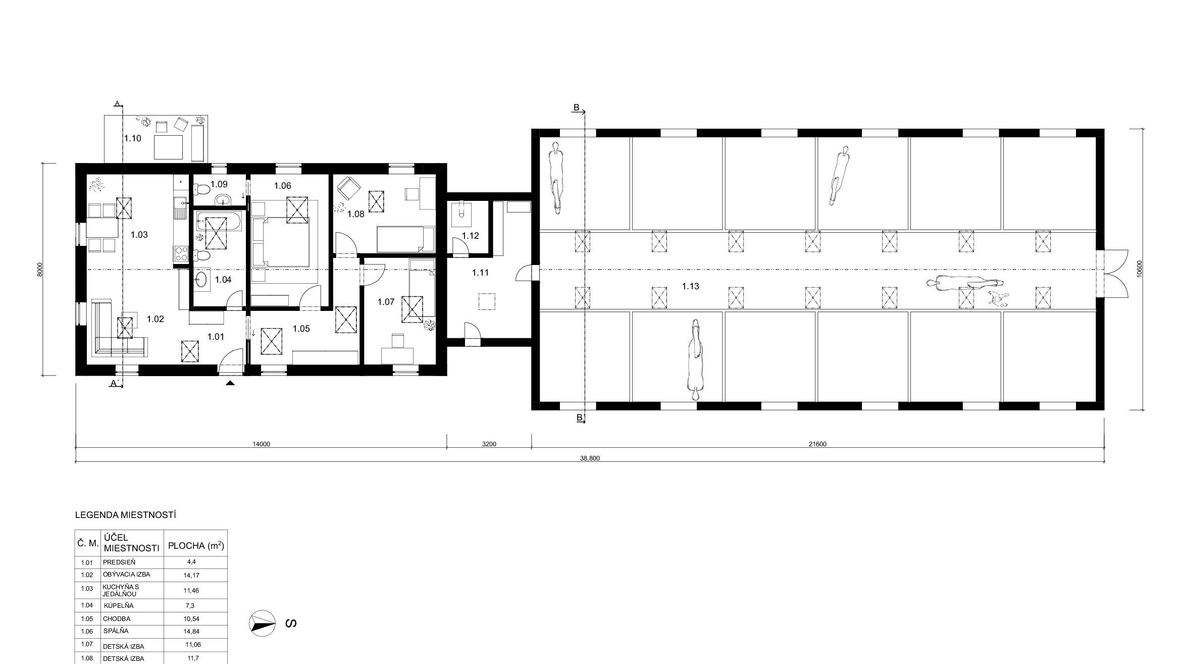
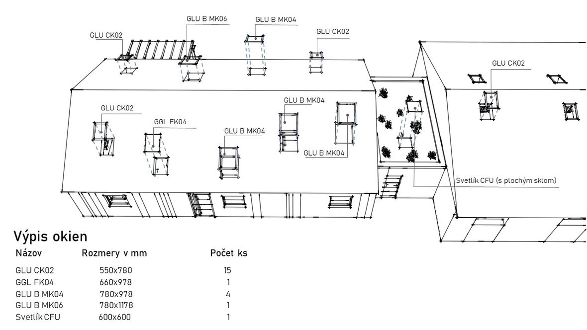
Projekt je adaptáciou priestoru občianskeho združenia, ktoré sa venuje starostlivosti o nechcené kone a psy a poskytovaniu rekreačného jazdenia. Dve písmená H symbolizujú slová Horses and Harmony ako napojenie domu na pokojnú prírodu a kone. Objekt je prestavaný na jednopodlažný rodinný dom pre zakladateľku, prepojený so stajňou pre kone a so skladom pre jazdecké vybavenie. Vďaka vyššej konštrukčnej výške, totožnej s výškou stajne a rôznemu sortimentu strešných okien Velux je zabezpečené dostatočné prevetranie a presvetlenie objektu. Všetky okná je možné podľa potrieb užívateľov ovládať aj diaľkovým ovládaním. Časť pôdorysu rodinného domu plní funkciu dennej časti s voľnou dispozíciou, kde sa rodina stretáva a druhá - nočná časť, je vybavená súkromne oddelenými dvoma detskými izbami a spálňou rodičov. Filtrom prechodu medzi rodinným domom a stajňou je spojovací krčok s technickou miestnosťou a skladom pre potreby k jazdeniu, krmivo, sedlá atď. Tento sklad je prekrytý zelenou strechou, svetlo do skladu preniká svetlíkom s plochým sklom. Aby mali aj ustajnené kone dostatok svetla a vzduchu, sú navrhnuté pre každý samostatný box široké otvory vo fasádnej stene spolu so strešnými oknami. Navrhnutým riešením by vznikla možnosť rodiny bývať priamo na mieste v ktorom pracujú, vychovávať deti v prírodnom pokojnom prostredí a žiť spolu so zvieratami, ktoré sú im odmalička blízke. Vďaka dobrej polohe a prístupnosti by tak mali aj návštevníci možnosť navštevovať moderné a komfortne upravené miesto, ktoré spolu s jeho obyvateľmi vytvára zónu pre oddych a trávenie voľného času.












