14. ročník súťaže Rodinný Dom - Odmena
-
Barbara Táborová

Názov projektu
Mökki
Spoluautor projektu
-
Vedúci projektu
Ing. Ondrej Hanzlík
Názov školy
Stredná priemyselná škola stavebná Hurbanovo
Rok
2022
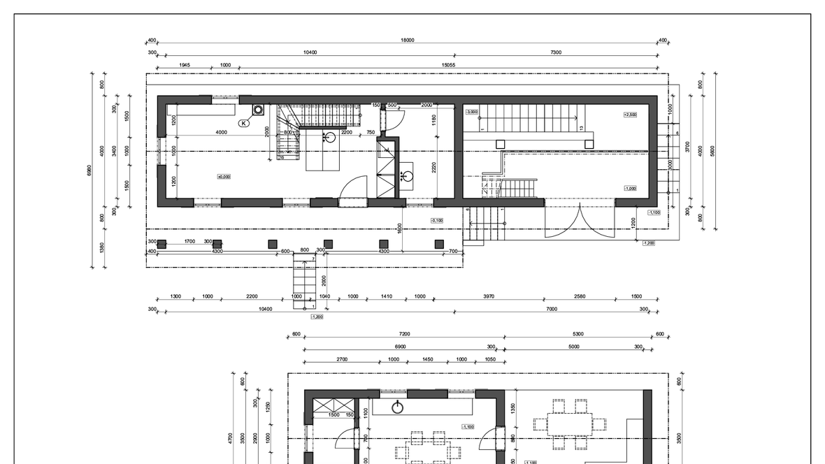
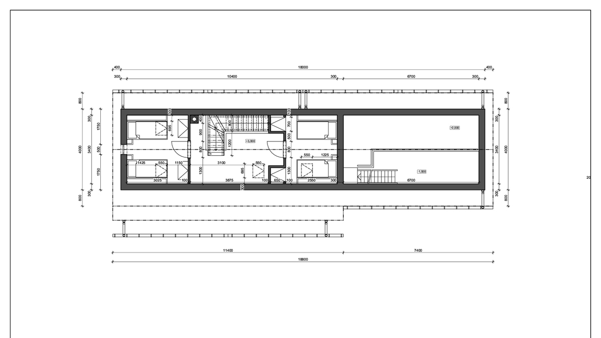
Opis vášho projektu
Navrhla som rekonštrukciu chalupy v Hriňovej. Mojim cieľom bolo vraziť nový dych do starej chalupy a vniesť pocit tradičnej slovenskej architektúry. Chalupa môže byť príjemným miestom pre rodiny s deťmi aj páry. Vyznačuje sa svojou jednoduchosťou a minimalizmom. Množstvo drevených elementov prináša pocit tepla a pokoja. Strešné okná umožňujú presvetlenie miestností ako aj prevetrávanie. K chalupe patrí aj letná kuchyňa, kde si ľudia môžu spraviť grilovačku. Objekt sa nachádza v tichom prostredí, čo umožňuje maximálne podmienky na komfort a oddych.




























