14. ročník súťaže Rodinný Dom
-
Liliana Michalčíková

Názov projektu
Spoluautor projektu
Vedúci projektu
Názov školy
Rok
Opis vášho projektu
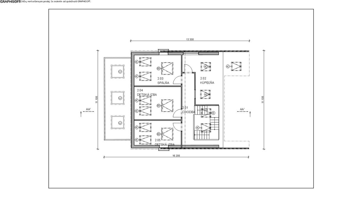
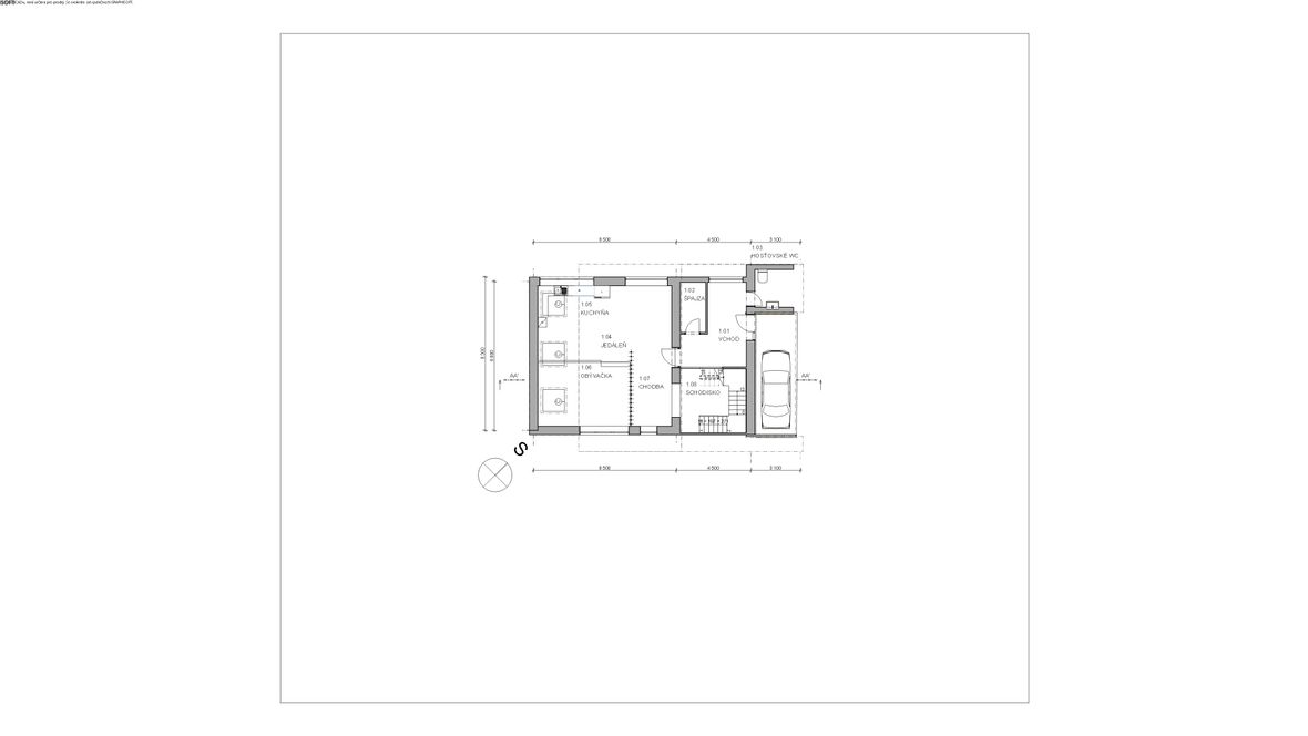
Mária a Ivan spoločne pracovali niekoľko rokov v prácach, ktoré ich nebavili a stali sa z nich uzavreté krabičky. Keď po rokoch v únavnej korporátnej práci si zo dňa na deň podali obaja výpoveď a rozhodli sa postaviť svoju otvorenú krabičku ďaleko od ľudí, kde sa môžu sa naplno venovať veciam, ktoré zameškali za roky práce. Tvar domu je inšpirovaný dvoma na seba uloženými krabičkami.Objekt je novostavba zasadená v odľahlej lokalite kysuckých lazov v dedinke Makov. Stavba je určená pre mladý pár ktorý v budúcnosti plánuje rodinu. Dom je rozdelený na dennú a nočnú časť, pričom denná čast sa nachádza na prízemí a skladá sa z kuchyne, obývačky, jedálňe a pracovného kútika. Prízemná časť disponuje otvoreným priestorom rozdeleným iba vizuálne. Absencia fyzických barier - stien podporuje spoločné trávenie času ktoré im dlhé roky abentovalo. Útulnosť interiéru je zvýraznená pomocou prirodzeného svetla, ktoré prichádza z viacerých uhlov hlavne cez strešné okno a svetlíky VELUX. Druhé poschodie disponuje 2 detskými izbami a spálňou ktoré sú veľkoryso presvetlené strešnými oknami Velux. Vďaka zelenej streche a strešným oknám objekt harmonicky ladí s prírodou.










