14. ročník súťaže Rodinný Dom
Ing. Katarína Rothmeierová, Ing. Patrik Benik
Terézia Mičinová

Názov projektu
Dom MODERNI
Spoluautor projektu
Andrea Bitarovská
Vedúci projektu
Ing. Katarína Rothmeierová, Ing. Patrik Benik
Názov školy
Stredná priemyselná škola stavebná v Nitre
Rok
2021/2022
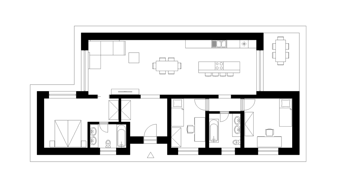
Opis vášho projektu
Dom je riešený v modernom štýle, nachádza sa tam jedna veľká miestnosť kde je kuchyňa, jedáleň a obývačka spojená dokopy. Dve detské izby, ktoré majú na chodbe spoločnú kúpeľňu a spálňa so samostatnou kúpeľňou. Vybavenie rodinného domu je prevažne z dreva. Na človeka tento materiál vplýva veľmi dobre a dotvára atmosféru "tepla" domova. Cieľom tohto projektu bolo dobré presvetlenie objektu denným svetlom a to sa nám podarilo dosiahnuť pomocou strešných okien VELUX.













