14. ročník súťaže Rodinný Dom
Michal Prekopp
Michal Prekopp

Názov projektu
Rodinný Dom s možnosťou výstavby do hornatého prostredia
Spoluautor projektu
Michal Prekopp
Vedúci projektu
Katarína Rothmeierová
Názov školy
Stredná priemyselná škola stavebná v Nitre
Rok
2022
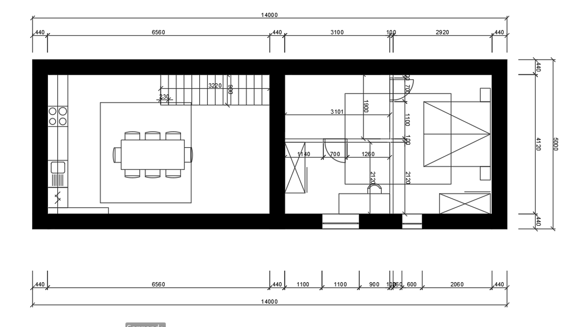
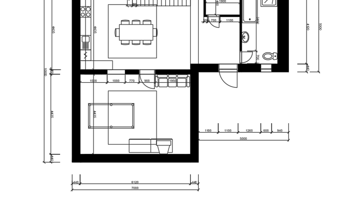
Opis vášho projektu
Dom navrhnutý pre mladých ľudí začínajúcich s manželstvom. Dom je navrhnutý na dennú zónu na prvom poschodí a na nočnú zónu na druhom poschodí. Dom je nepodpivničený a ma možnosť byť postavený v kopcovitých oblastiach. Vďaka elkovitemu tvaru môže byť obývačka podopreta dvoma nosnými stlpamy čím v kopci vznikne priestor. Do priestoru môže byť umiestnená kôlna alebo parkovanie pre auto. Nachádza sa tu spalná, pracovňa, kuchyňa so strešnom oknom, komora, obývačka a kúpeľňa. Dom môže byť postavený ale aj v mestách či na dedine. Vkaždom s týchto troch prípadov by sa sem umiestnilo podlahové vykurovanie pretože je jednoduché a nemuseli by platiť za kúrenie.








