14. ročník súťaže Rodinný Dom
Rodinný dom s čiastočným podkrovím
Tomáš Kopinec

Názov projektu
Rodinný dom s čiastočným podkrovím
Spoluautor projektu
Tomáš Kopinec
Vedúci projektu
Zuzana Šišáková
Názov školy
Stredná odborná škola stavebná Liptovský Mikuláš
Rok
2022
Opis vášho projektu
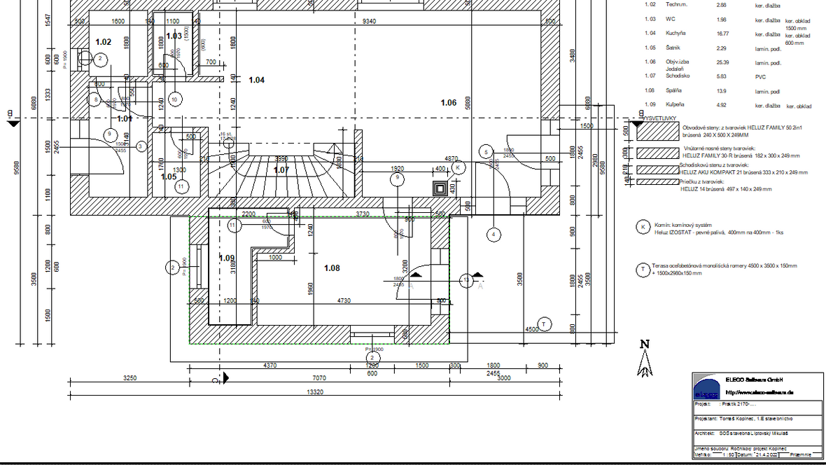
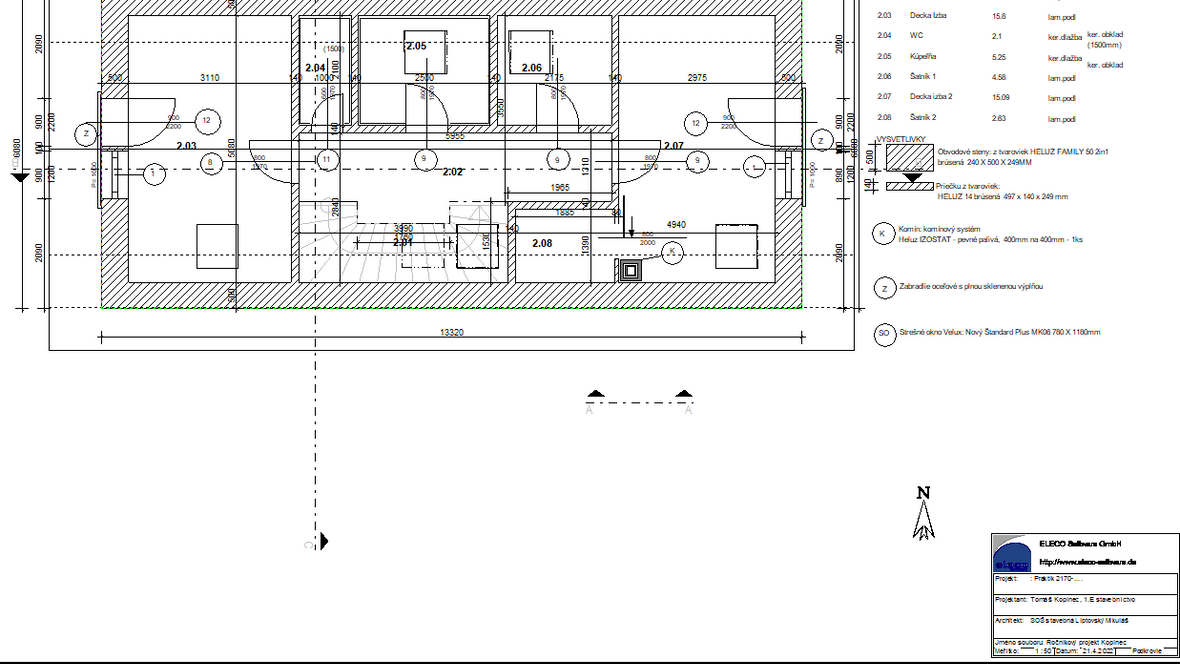
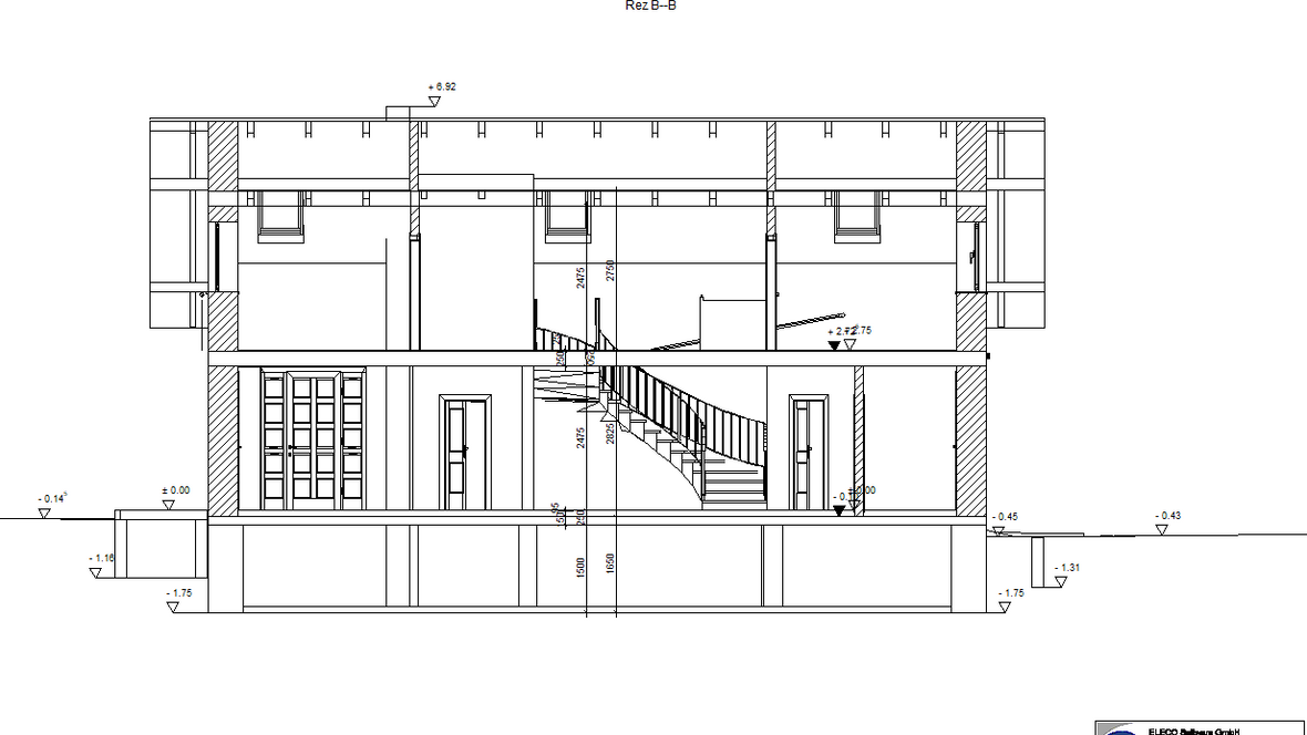
Rodinný dom sa bude nachádzať v horskom prostredí Stošíc – mestskej časti Liptovského Mikuláša, čomu je prispôsobený jeho vonkajší vzhľad. Je navrhnutý z keramického stavebného systému Heluz ako dom s takmer nulovou potrebou energie. Podkrovie je navrhnuté nad dlhšou časťou pôdorysu a je zastrešené sedlovou strechou so sklonom 45° a presvetlené strešnými oknami Velux Nový Štandard Plus MK06 780 X 1180 mm v počte 6 kusov, dvomi fasádnymi oknami a dvomi presklenými balkónovými dverami. Prízemná čať domu je uzavretá plochou strechou s minimálnym spádom.








