14. ročník súťaže Rodinný Dom
Svetlý Dom
Lukáš Holík

Názov projektu
Spoluautor projektu
Vedúci projektu
Názov školy
Rok
Opis vášho projektu
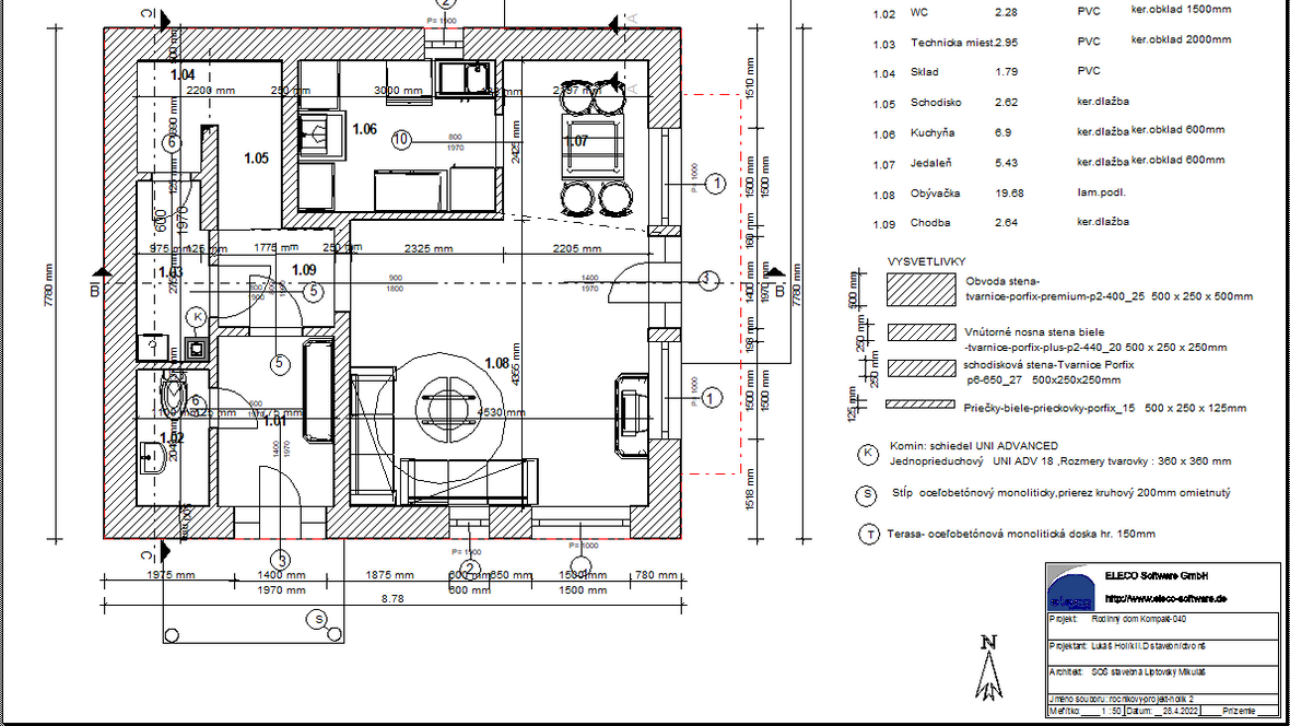
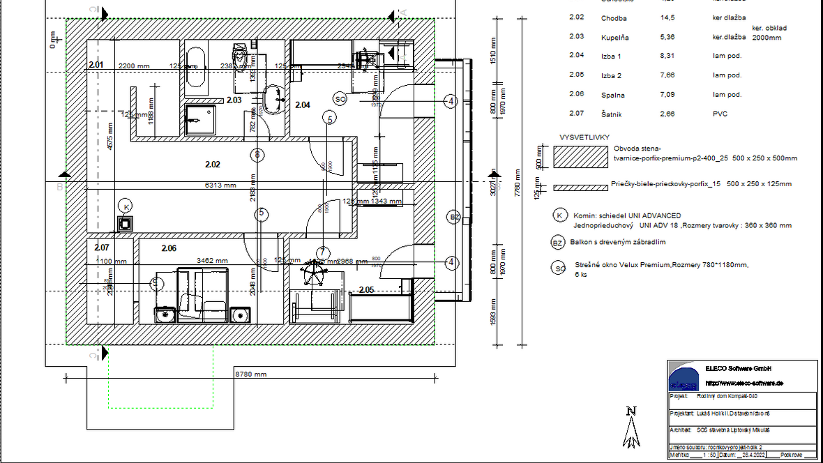
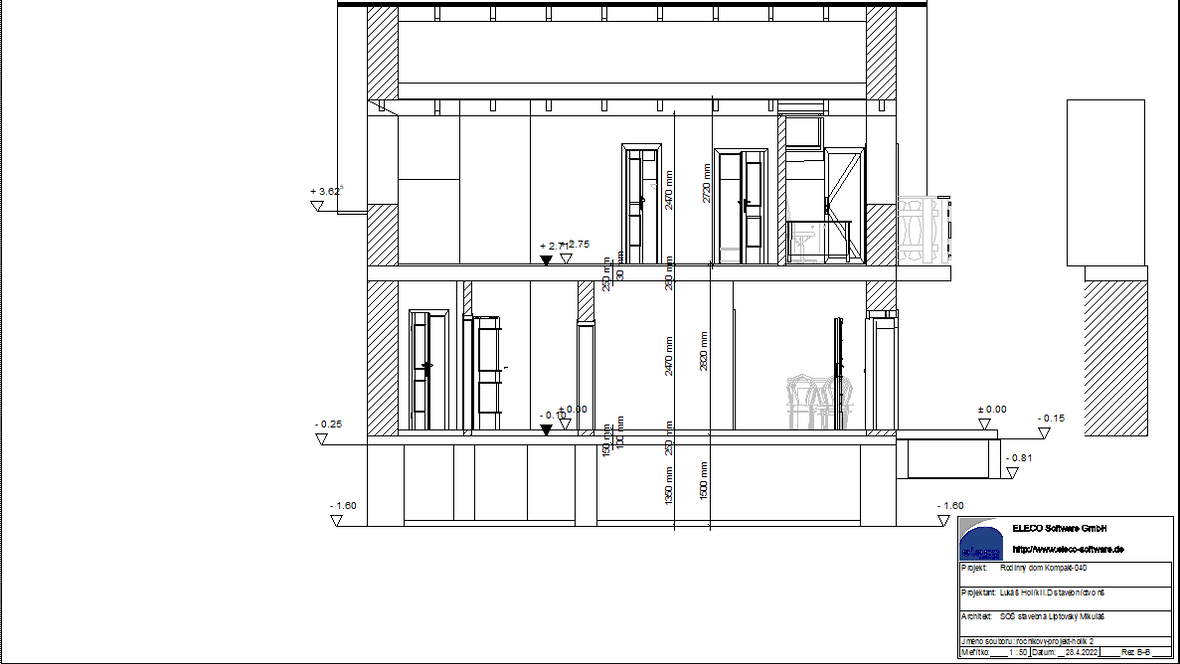
Objekt rodinného domu je situovaný v časti obce Liptovský Hrádok na pozemku investora. Terén pozemku je členitý, pôvodne orná pôda. Pozemok s parcelným číslom 1252 patrí do katastrálneho územia Dovalovo Prístup na pozemok je priamy z obecnej komunikácie. Vstup do domu je riešený z juhovýchod strany. Prehľad súhrnných údajov: Zastavaná plocha : 95,931m2 Obostavaný priestor : 498,63 m3 Úžitková plocha : 98,76m2 Konštrukčne je rodinný dom navrhnutý ako murovaný z obvodových tvarnice-porfix-premium-p2-400_25 500 x 250 x 500mm, Vnútorné nosné steny tvorí murivo z tvaroviek biele-tvarnice-porfix-plus-p2-440_20 500 x 250 x 250mm a p6-650_27 500x250x250 mm . Priečky sú navrhnute z priečkové biele-prieckovky-porfix_15 500 x 250 x 125mm. Na prízemí je navrhnutý 1 stĺp -Stĺp oceľobetónový monoliticky, prierez kruhový 200mm omietnutý podopierajúci strechu. V objekte je navrhnutý 1 komín : Komin: schiedel UNI ADVANCED Jedno prieduchový UNI ADV 18 ,Rozmery tvarovky : 360 x 360 mm. Objekt je zastrešený Zastrešený je sedlovou strechou so sklonom 38° stupňov. Konštrukcia strechy je tvorená hambálkovým krovom s upraveným podhľadom. Strecha je pokrytá.





