15. ročník súťaže Rodinný Dom - Odmena
EDAM
Emma Borisová

Názov projektu
Spoluautor projektu
Vedúci projektu
Názov školy
Rok
Opis vášho projektu
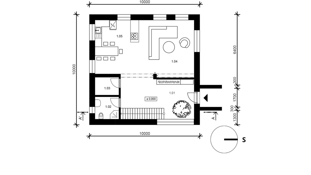
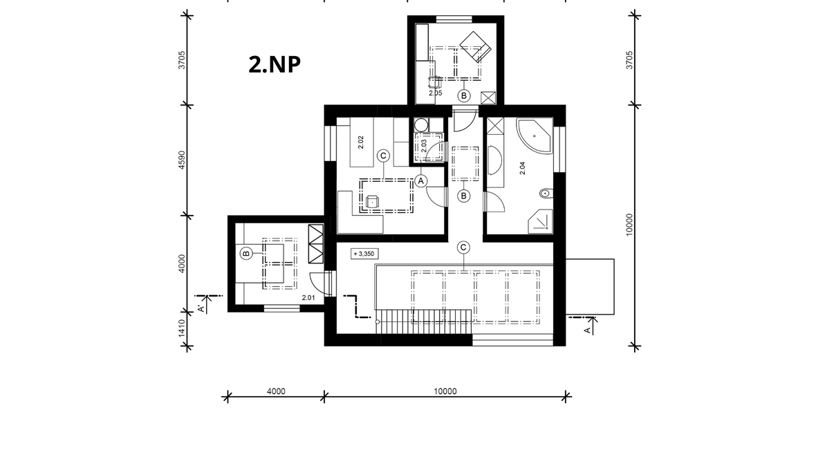
Tento dom sa nachádza v nedotknutej prírode, v smrekovom háji pri jazere. Svojou svetlou farbou fasády s kombináciou s javorovými lamelami dom farebne vyniká vo svojej lokalite. Vďaka lokalite a kombinácii materiálov, EDAM získava na svojej jedinečnosti a kráse. Názov EDAM vznikol kombináciou slov Adam a Eva, nadväzuje na jabloň, ktorá sa nachádza vo vnútri domu. Práve vďaka týmto prvkom, môže dom znázorňovať takú "rajskú záhradu", kde Adam a Eva porušili Boží zákon a ochutnali zakázané ovocie. Dom ma blízko k prírode aj v interiéri. Použité sú prírodné materiály - kameň, drevo, s kombináciou liateho betónu a pohľadového betónu. Dizajn interiéru sa nesie v duchu škandinávskeho, prírodného a etnického štýlu. Vchod je situovaný na sever, čo umožňuje východu slnka zobúdzať rodinu pričom západ vytvára príjemnú atmosféru na relax a prácu. V dome sa nachádza spoločná kuchyňa s obývačkou a jedálňou, spálňou, detskou izbou, pracovňou a kúpeľňou s osobitným WC.











