15. ročník súťaže Rodinný Dom
Alexa
Alexa Dzubáková

Názov projektu
Rodinný dom White Muse
Spoluautor projektu
Alexa
Vedúci projektu
Ing. Arch. Petra Radvaniová
Názov školy
SPŠ Stavebná a geodetická, Lermontovova 1 Košice
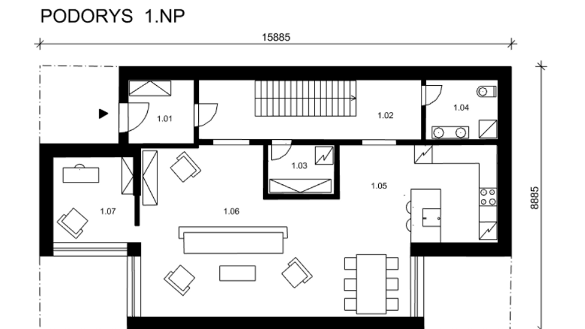
Opis vášho projektu
Rodinný dom sa nachádza v príjemnom prostredí a pýši sa svojou jednoduchosťou. Má minimalistickú architektúru a nenáročné interiéry. Zvonku dom pôsobí skôr obyčajne, no vo vnútri je všade cítiť nádych dreva. Priestranné izby domu sú ideálne pre mladý pár, ktorý si chce vybudovať spoločný život. Domov rodiny disponuje spoločnou obývačkou a kuchyňou, spálňou a šatníkom, detskou a hosťovskou izbou, pracovňou a kúpeľňou. Aj keď bol dom navrhnutý s ohľadom na minimalizmus, stále vyžaruje láskou. Výhľad z domu je úchvatný. Veľká záhrada, ktorá ho obklopuje, je ideálnym miestom pre pár na pokojnú rannú prechádzku, vychutnávajúc si čerstvý vzduch a spev vtákov.













