15. ročník súťaže Rodinný Dom
Katarína Hegykoziová
Katarína hegykoziova

Názov projektu
Spoluautor projektu
Vedúci projektu
Názov školy
Rok
Opis vášho projektu
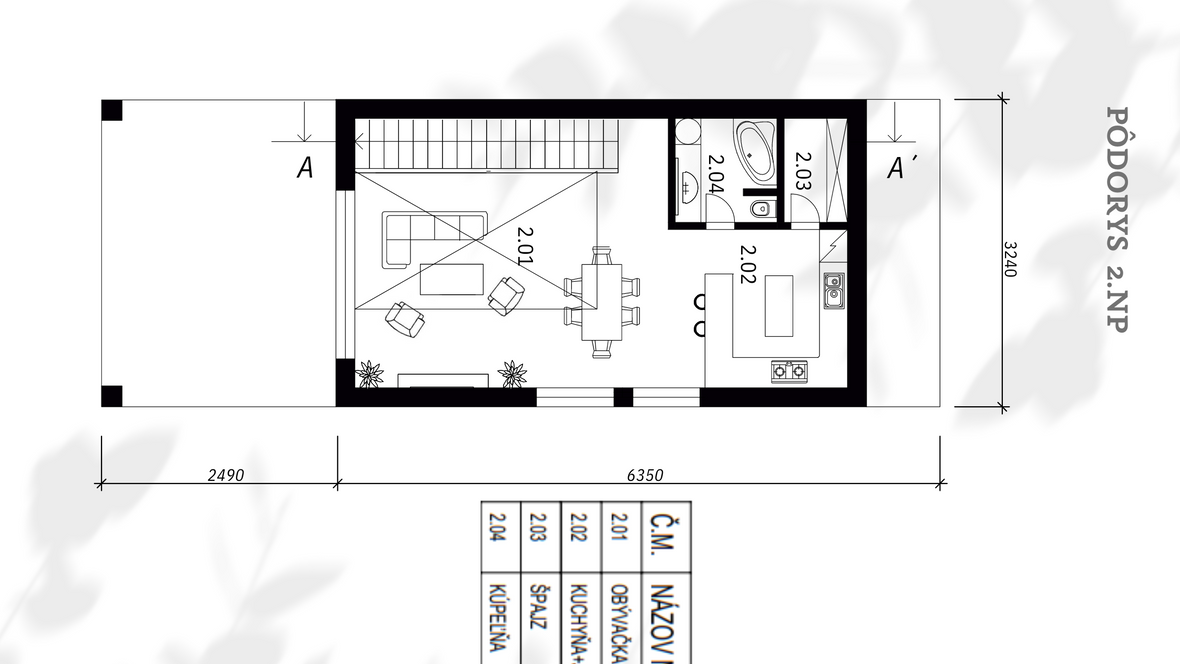
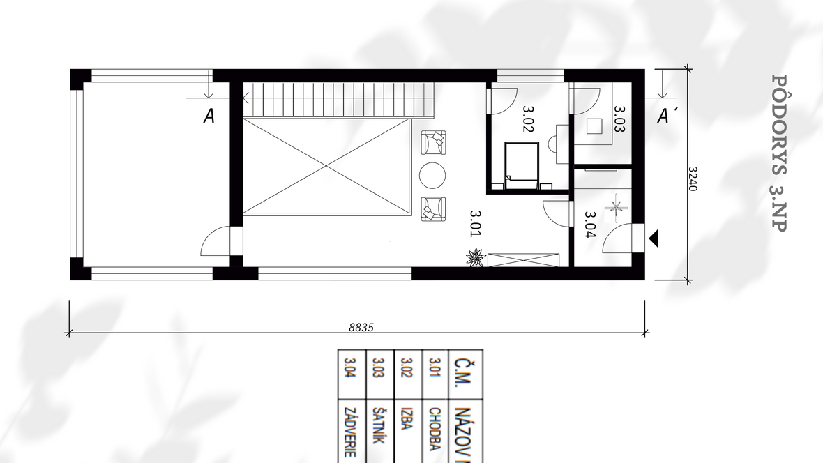
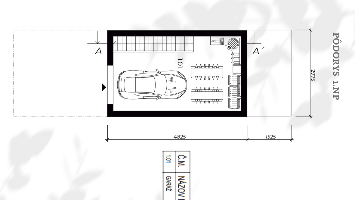
V preklade z angličtiny dreams - sú sny a villa - vila. Spojením vzniká v slovenčine názov Villa snov, ktorý tento objekt vystihuje perfektne. Dom sa nachádza vo svahu a je riešený trojpodlažne s plochou strechou. Jednoduchosť farieb, elegantnosť, priestranosť a obrovská galéria sú dominantom tohto projektu. Jeho súčasťou je tiež záhrada, bazén, terasa a zimná zahrada nachadzajúca sa na 2.NP. Ďalším kľúčovým prvkom je tiež vegetačná strecha, ktorá vytvára spojenie so zeleňou. Presvetlenie som riešila veľkými oknami a svetlíkmi velux CVU 0320Q,CVU 0220Q,ktoré sa nachádzajú na chodbe a nad galériou. Chodba z estetického hľadiska pôsobí vzdušnejšie a je zaliata svetlom.Nad galériou som svetlíky umiestňovala na základe veľkého presvetlenia viacerích podlaží súčastne.







