15. ročník súťaže Rodinný Dom - 1. miesto
AKO NA DLANI
Jakub Bobula

Názov projektu
Spoluautor projektu
Vedúci projektu
Názov školy
Opis vášho projektu
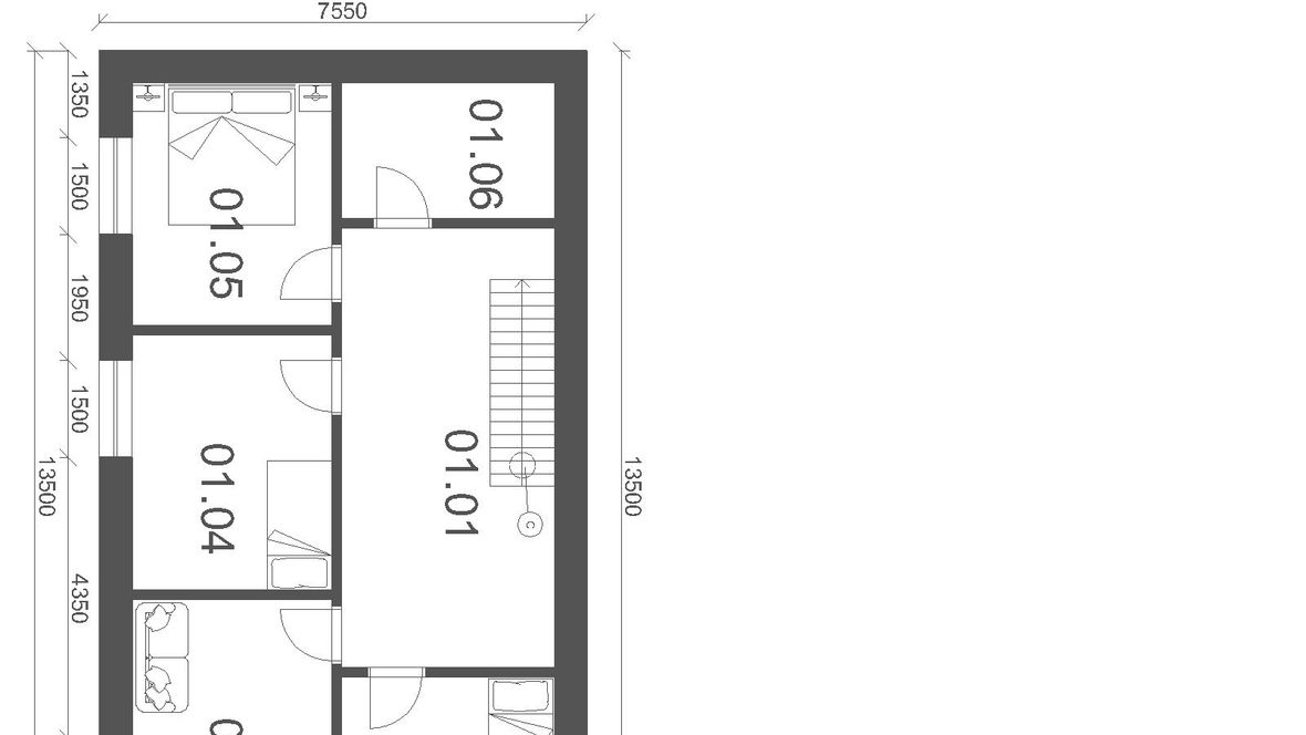
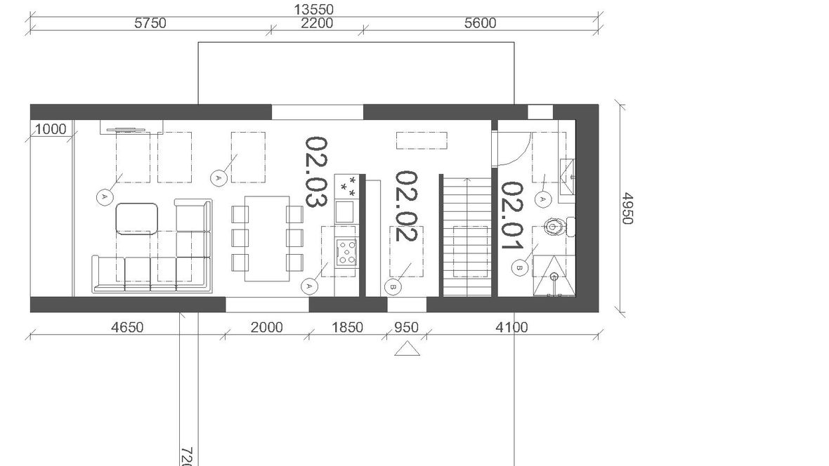
Ide o koncept dvojpodlažného domu pre 4 člennú rodinu s jednoduchým designom, ktorý tvorí spodná časť 1NP ,ktorá je z časti zapustená v teréne a zároveň tvorí nočnú časť domu. Nachádza sa v nej kúpeľňa s toaletou a 4 izby. Prístup je po jednoramennom schodisku presvetlenom svetlovodom, ktorý je schovaný v zelenej streche. Časť strechy 1NP tvorí terasu so vstupom do samotného domu. Druhé podlažie je navrhnuté otvorene a minimalisticky so stenami vysokými 3m a preskleným oknom na jeho štíte. Predstavuje dennú časť domu. Po vstupe do domu sa ocitnete v otvorenej predsieni pričom nad hlavou sa vám nachádza sieť, ktorá patrí k chill zóne umiestnenej v zadnej časti druhého podlažia. Ako hlavný materiál som použil betón pre jeho čistotu a drevo ako obklad pre jeho mäkkosť. Jednotlivé izby sú dostatočne presvetlené francúzskymi oknami.
















