15. ročník súťaže Rodinný Dom
2023
Karolína Greštiaková

Názov projektu
IGRID House
Spoluautor projektu
.
Vedúci projektu
Ing.Ondrej Hanzlík
Názov školy
Stredná priemyselná škola stavebná Hurbanovo
Opis vášho projektu
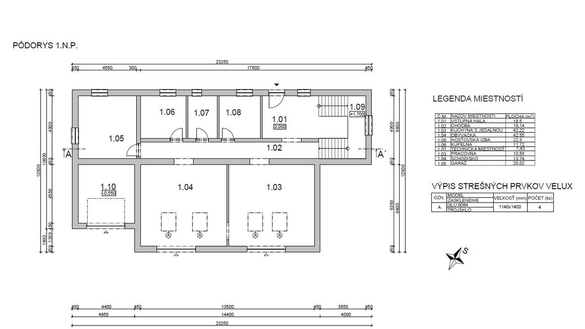
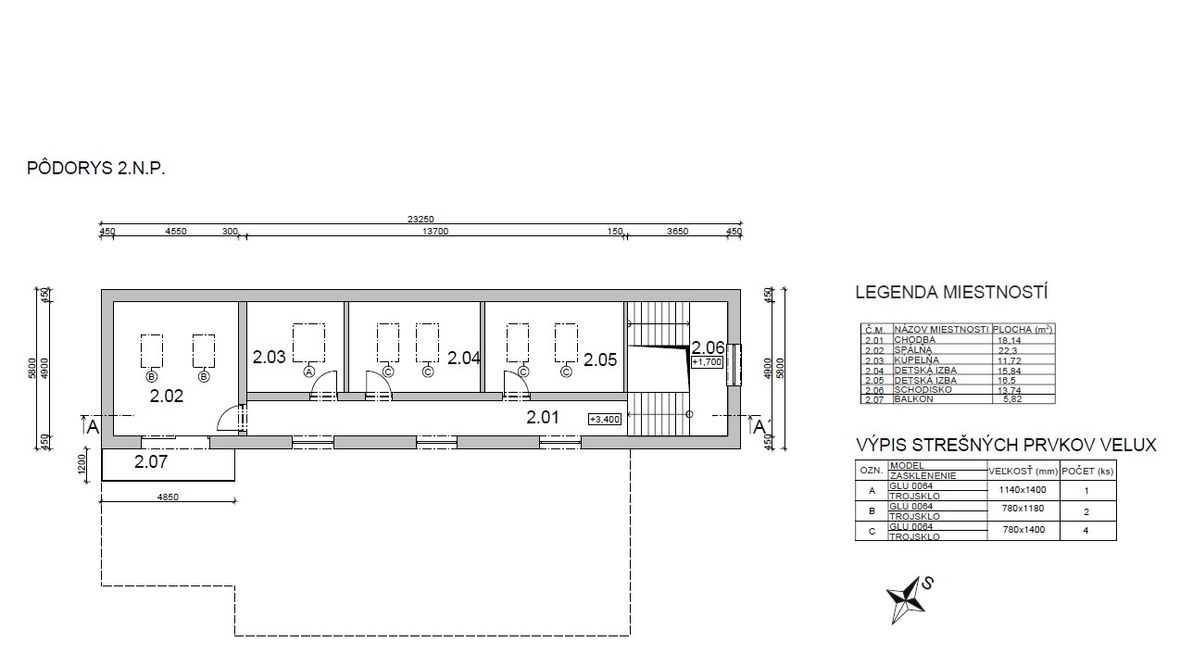
Nízkoenergetický dom IGRID je dvojpodlažná stavba. Dom je navrhnutý pre 4-5člennú rodinu. Dostatok svetla je vyriešený s VELUX strešnými oknami. Táto stavba je určená pre milovníkov pokoja a prírody. Na prvom nadzemnom podlaží sa nachádza pracovňa, kúpeľňa, hosťovská izba, obývačka a kuchyňa. Z obývačky i z kuchyne je možné ísť von a relaxovať na terase. Na druhom nadzemnom podlaží sa nachádza spálňa, kúpeľňa a dve detské izby. Dom má aj pristavanú garáž.














