15. ročník súťaže Rodinný Dom
2023
Sandra Škanderová

Názov projektu
Serendipity
Spoluautor projektu
Karolína Brathová
Vedúci projektu
Ing. Patrik Benik
Názov školy
Stredná priemyselná škola stavebna
Opis vášho projektu
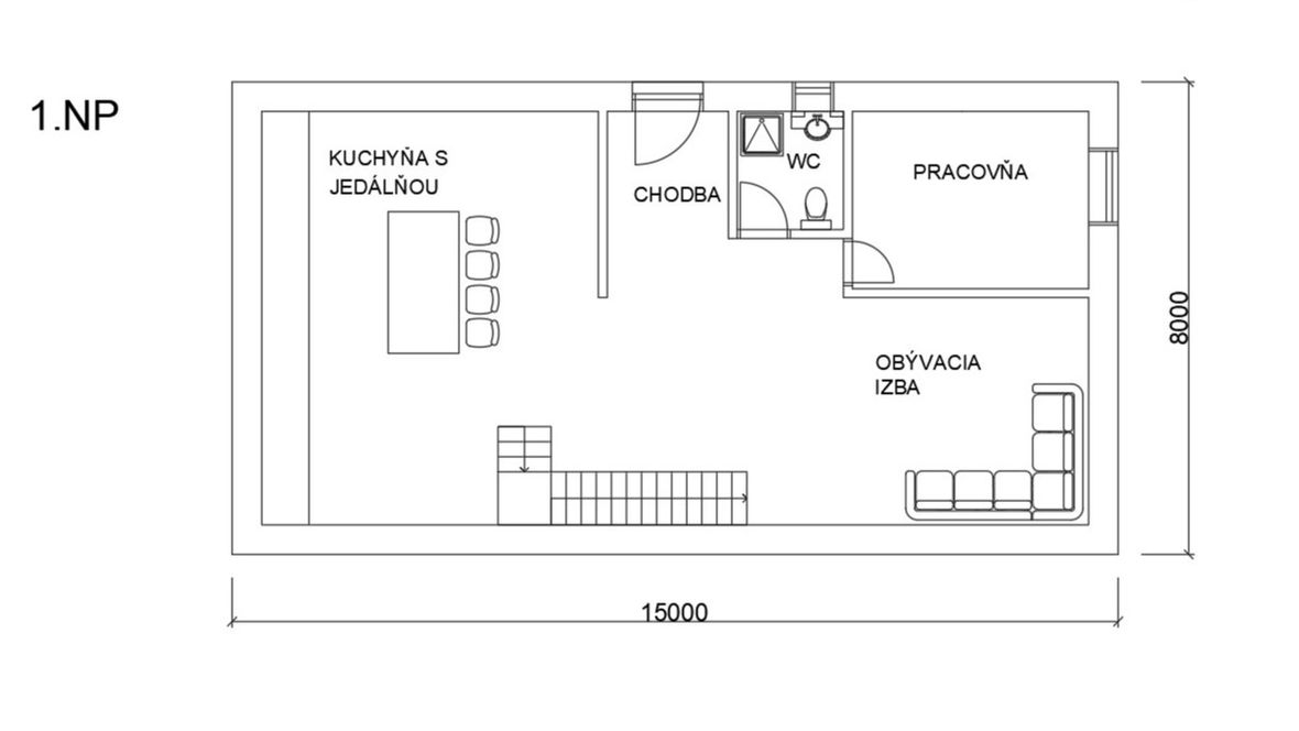
Náš projekt sme začali robiť s ideou jednoduchého domu, ktorý nám pekne vynikne v meste aj na dedine. Dizajnom sme sa ladili viac do moderného štýlu a jednoduchými farbami. Tento dom je vytvorený pre malú troj až štvorčlennú rodinu. Taktiež sme naň pridali solárne panely aby sa dom stal nízkoenergetickejším. Názov serendipity znamená: ,,nájdenie niečoho dobrého bez toho, aby sme to hľadali".










