15. ročník súťaže Rodinný Dom
--
Ľudmila Nováková

Názov projektu
Spoluautor projektu
Vedúci projektu
Názov školy
Rok
Opis vášho projektu
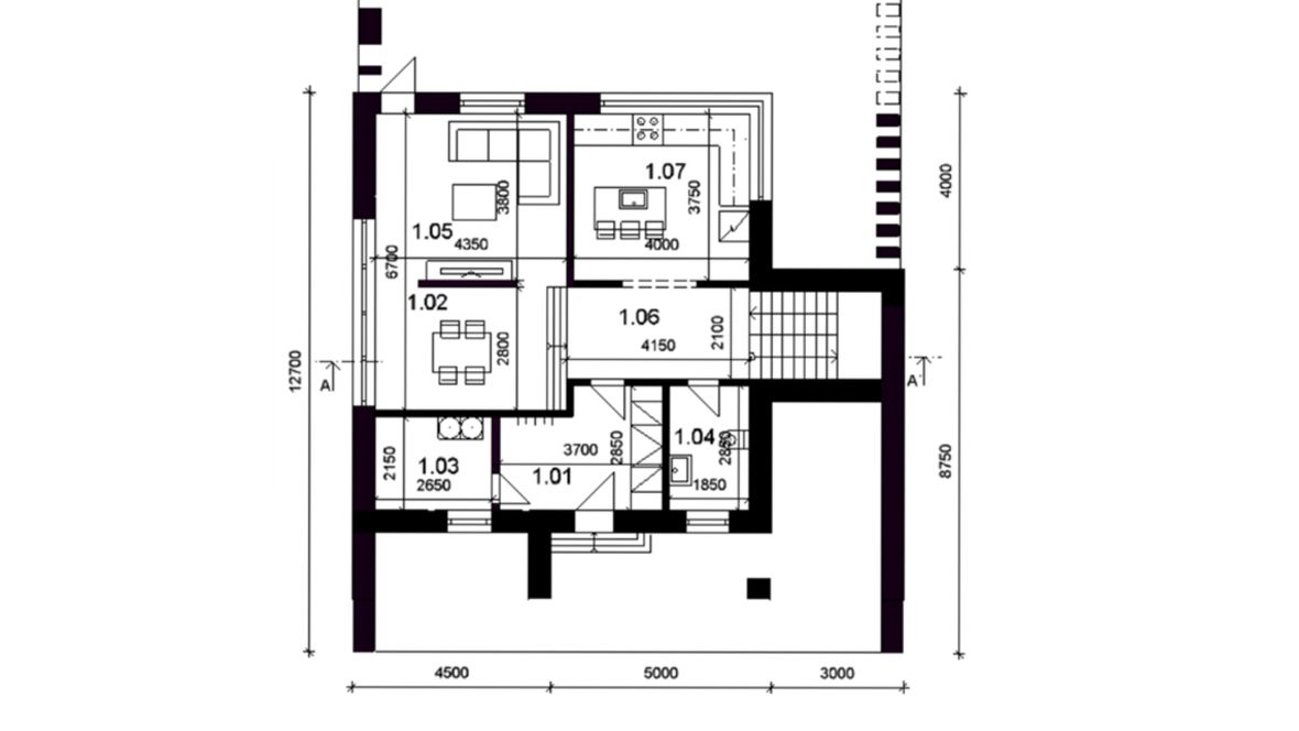
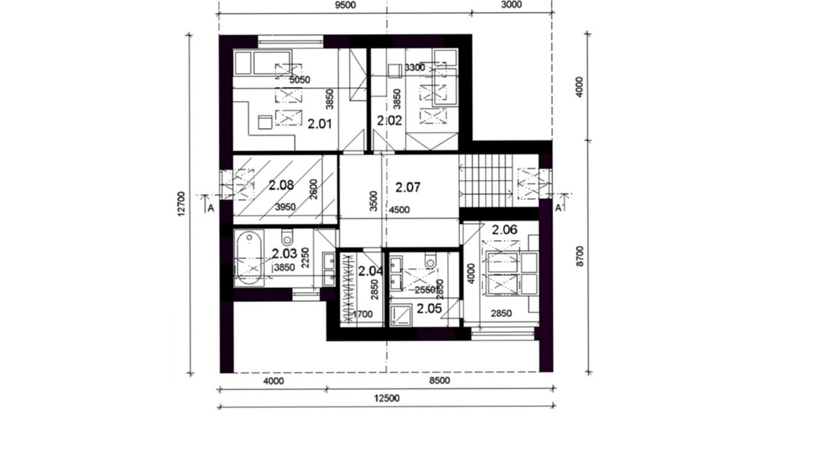
Môj rodinný domček symbolizuje rodinné puto medzi rodičmi a deťmi , kde hlavným symbolom sú vonkajšie oporné piliere . Dokončené piliere sú oporou pre strechu domu , čo má symbolizovať rodičov ako oporu rodiny a nedokončené piliere , ktoré akoby dorastajú , symbolizujú deti . Dom harmonizuje s prírodou vďaka materiálu dreva a kameňa použitého na fasáde. Aj interiér dopĺňa kúsok zelene v každej miestnosti. Stavba má logicky riešenú dospoziciu prispôsobenú na svetové strany . Interiér sa delí na dennú a nočnú časť , pôsobí harmonicky, čisto a pokojne. Každý člen rodiny má vlastné miesto na odpočinok a záľuby ale zároveň na trávenie spoločného času. Do interiéru domu sa vchádza cez predsieň, odkiaľ je vstup do technickej miestnosti, z predsiene sa dá dostať na chodbu , z ktorej je voľný prístup na schodisko, do obývačky s jedálňou, kuchyne a samostatného WC. Druhé podlažie disponuje dvoma detskými izbami , spálňou so samostatnou kúpeľňou s WC, šatníkom a kúpeľňou pre deti. Najviac sa mi páči otvorená galéria nad jedálňou, ktorá je rozjasnená vďaka strešným oknám VELUX . Galéria predstavuje otvorenosť vo vzťahoch v rodinnom kruhu.





